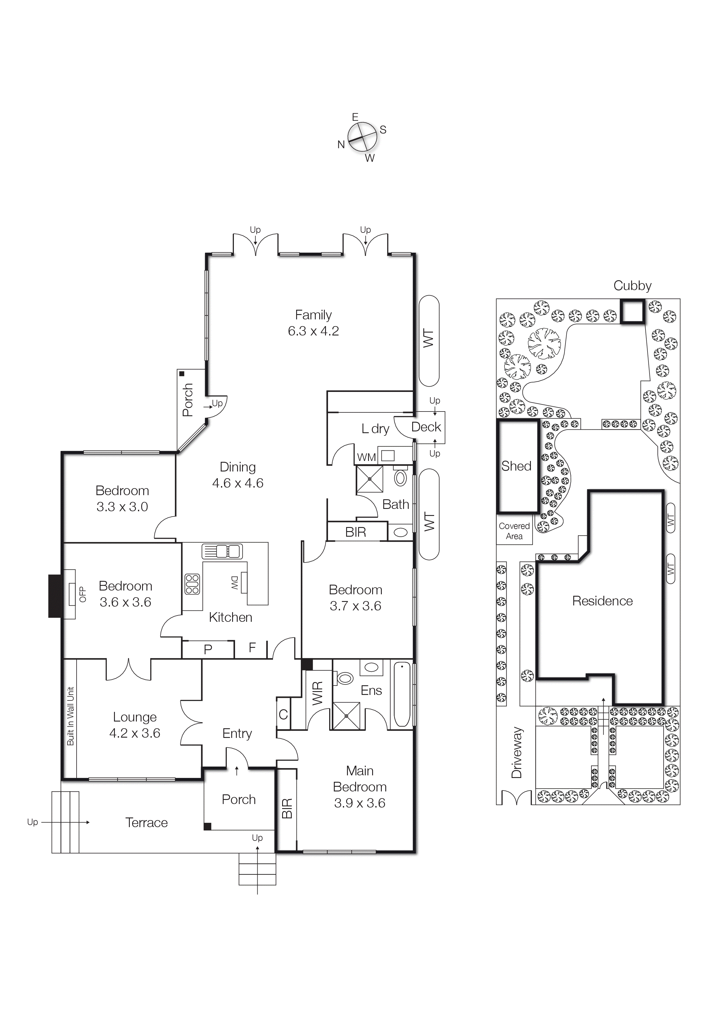
An idyllic family home in an equally idyllic family-focused neighbourhood, this 4-bedroom, 2-bathroom haven is an offering that will take you through every stage and phase in comfort, space and style.
Nestled amongst established leafy gardens on its generous Pennydale allotment of approx. 676sqm, the home’s classic weatherboard façade makes a...
An idyllic family home in an equally idyllic family-focused neighbourhood, this 4-bedroom, 2-bathroom haven is an offering that will take you through every stage and phase in comfort, space and style.
Nestled amongst established leafy gardens on its generous Pennydale allotment of approx. 676sqm, the home’s classic weatherboard façade makes a heart-warming first impression and leads to sun-filled interiors that are warm, welcoming and ready to be enjoyed.
Among the highlights are an inviting lounge with bespoke joinery, along with a vast light-lavished family/dining zone which opens to a bricked patio and the deep backyard for effortless indoor-outdoor enjoyment.
At the centre of the home is a contemporary kitchen with Bosch dishwasher, a gas cooktop and extensive storage.
The peacefully positioned primary bedroom looks out to the verdant front garden and boasts a walk-in robe and ensuite. The remaining bedrooms share a bright bathroom whilst ducted and zoned heating & cooling, hardwood floors, a lock-up garage and driveway parking for 1 car complete a truly appealing package.
Close to Olympic Ave Preschool, parks and championship golf courses, this quiet low-traffic address is within moments of Cheltenham’s retail/dining hub & station, Cheltenham and Beaumaris North Primary Schools and Southland shopping centre. The area’s beautiful beaches and Bayside’s leading private schools are all mere minutes away.
For more information about this idyllic family home contact Kylie Charlton at Buxton Sandringham