At the heart of this stylish 3 bedroom, 2 bathroom home is a sun soaked, poolside lifestyle filled with family, friends & fun. A large Merbau entertaining deck with clever box seat storage, undercover alfresco area and a luxurious built in day bed set in lush, tropical gardens complete the outdoor appeal. Inside beautiful Spotted Gum timber...
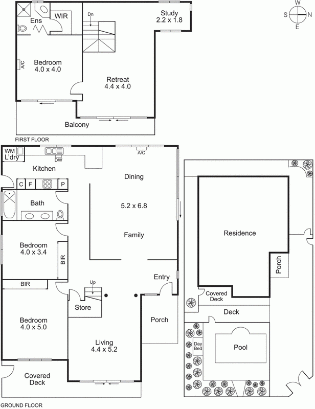
At the heart of this stylish 3 bedroom, 2 bathroom home is a sun soaked, poolside lifestyle filled with family, friends & fun. A large Merbau entertaining deck with clever box seat storage, undercover alfresco area and a luxurious built in day bed set in lush, tropical gardens complete the outdoor appeal. Inside beautiful Spotted Gum timber floors feature throughout the bright and spacious, free flowing ground floor layout. Enjoy a comfortable family lounge that opens out to the sparkling pool through glass sliding doors, an open plan living/meals (A/C) and a sleek stainless steel appliance & splash back kitchen with Caesarstone bench tops & Blum soft close joinery. An upstairs parents zone including an expansive retreat or lounge, home office and master suite with sunny treetop balcony, WIR & ensuite is a true highlight. Two generous bedrooms (BIR), big family bathroom, concealed Euro laundry, ducted heating, under stair storage, wrap around courtyard with veggie patch, solar pool heating and off street parking for 2 cars all set on northerly corner site complete this great family package. Add a highly sought after Landcox Park locale close to the popular Zest cafe, Bay Street shopping, dinning & cinema and only two doors to the park & Gardenvale Primary School. For more information about this perfectly positioned, family upsize opportunity please contact Halli Moore at Buxton Brighton on 0403 777 661