A home for all seasons, this 4 bedroom family home is surrounded by openly spacious front & rear gardens on 500m2/5380sqft (approx). An outdoor-focused design wraps the formal dining & two robed bedrooms around a sun-soaked undercover entertaining area for summer sunshine, and a copper-flued open fire in the family room, reverse-cycle...
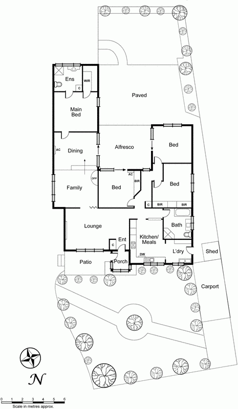
A home for all seasons, this 4 bedroom family home is surrounded by openly spacious front & rear gardens on 500m2/5380sqft (approx). An outdoor-focused design wraps the formal dining & two robed bedrooms around a sun-soaked undercover entertaining area for summer sunshine, and a copper-flued open fire in the family room, reverse-cycle air-conditioning & ducted heating ensures life is cosy in the colder months. Zoned for living & lifestyle, with a formal lounge, timber kitchen & meals, master suite with its own ensuite & deep walk-in-robe, 3 further bedrooms (2 with robes) and 2 recently renovated bathrooms (including spa bath) to deliver a sleek level of stylish luxury. Extras include carpet throughout, timber venetians, 900ml stainless-steel stove, dishwasher & carport. Close to Southland shops & cafes, Highett Reserve & station, and Waves Leisure Centre.