In one of the coveted Golden Triangle's most tightly-held beach-style lanes with beautiful Half Moon Bay as the backdrop, this elegant 4 bedroom 2.5 bathroom low maintenance haven captures the essence of beachside living with its lighthouse style atrium and relaxed ambience. This idyllic retreat features a downstairs 4th bedroom with pretty garden...
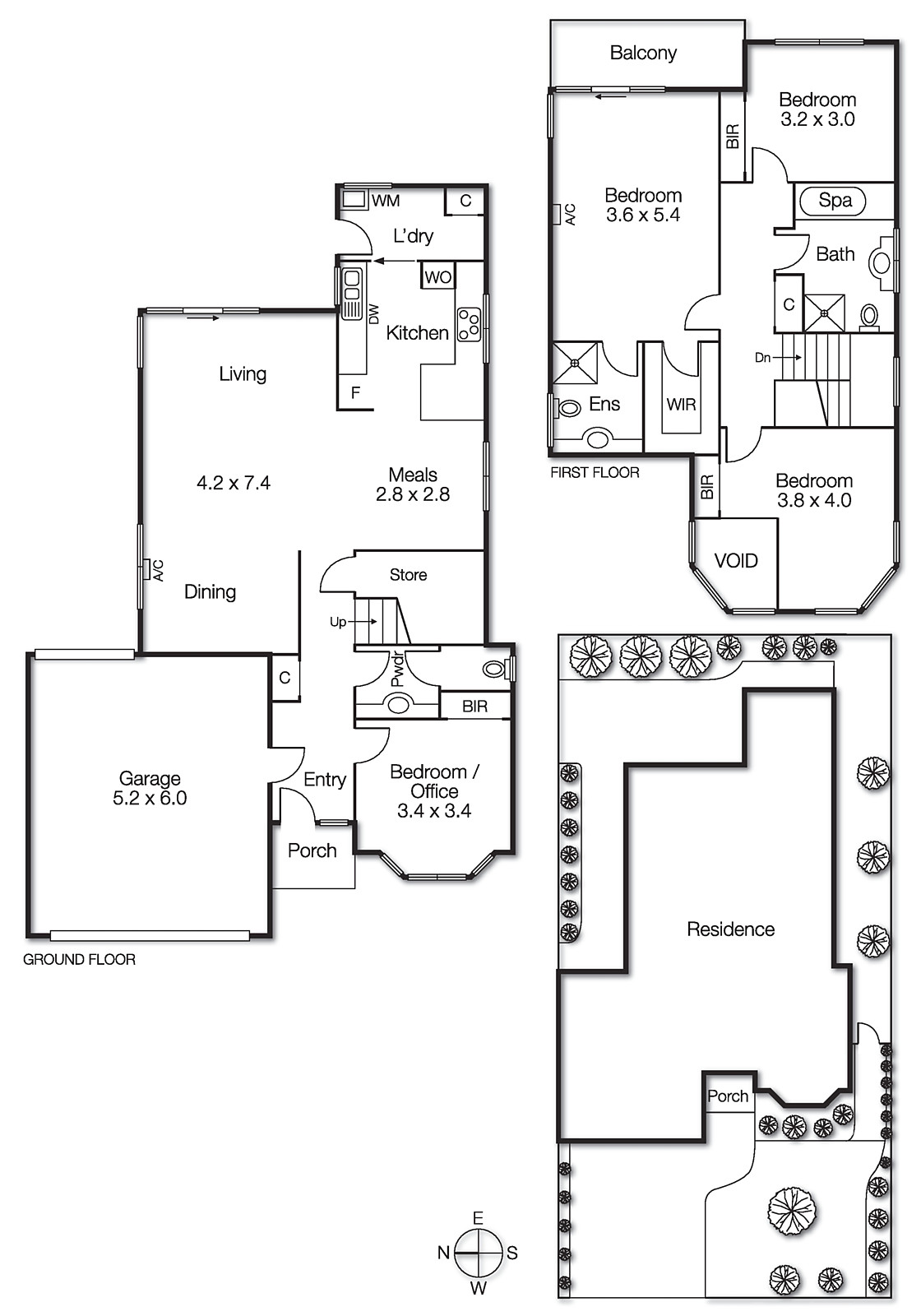
In one of the coveted Golden Triangle's most tightly-held beach-style lanes with beautiful Half Moon Bay as the backdrop, this elegant 4 bedroom 2.5 bathroom low maintenance haven captures the essence of beachside living with its lighthouse style atrium and relaxed ambience. This idyllic retreat features a downstairs 4th bedroom with pretty garden outlooks and built in wardrobe, a large adjoining powder room offering scope for future floorplan flexibility, sun filled living & dining area with tranquil alfresco courtyard, charming kitchen/meals with Bosch dishwasher and Electrolux oven as well as a family size laundry. Upstairs, there is an expansive master bedroom complete with walk-in wardrobe, ensuite & a large balcony, along with a 2nd double bedroom (BIRs), and a further light-filled triple aspect bedroom offering spectacular sunset outlooks and bay glimpses through the trees. Superbly maintained, this inviting home is appointed with timber floors, ducted heating, air conditioning, ducted vacuum, white timber blinds and a double auto garage with rear rollerdoor. Sarah Street enjoys a very special & secluded position being just a saunter to the sand for your morning swim or a walk along the cliff tops, and an easy stroll to bustling Black Rock Village with its choice of gorgeous boutiques and eateries. Both discerning downsizers and families will appreciate the choice of world championship golf courses nearby, superb cycling on the doorstep, a selection of highly regarded schools and kinder within walking distance with the added benefit of the bus to Southland & Sandringham station just around the corner. For more information on this delightful property contact Mark Earle or Stefan Delyster.
Listing Website