Completely renovated behind a facade of storybook charm, this three bedroom two bathroom family home surpasses all expectations from its sensational style and luxurious finish to its multiple indoor and outdoor living areas, flowering garden and versatile OSP. Just around the corner from Port Melbourne Primary in a quiet period lined street, a...
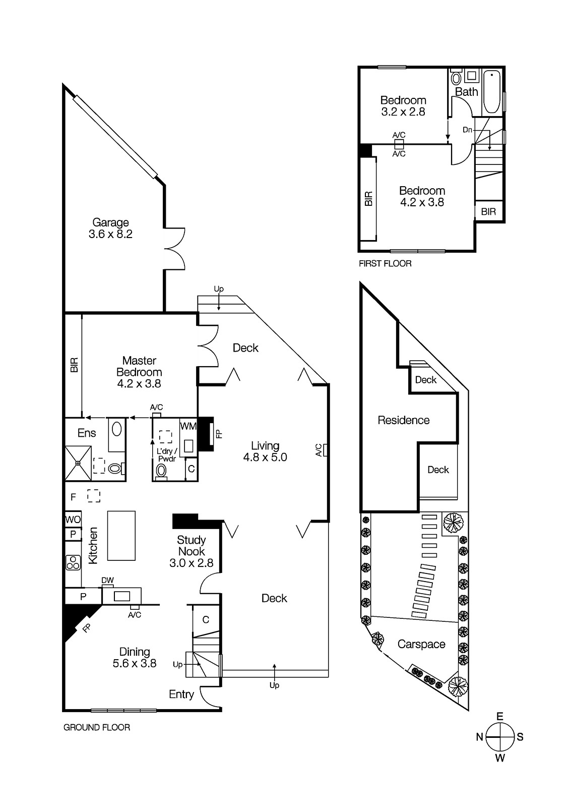
Completely renovated behind a facade of storybook charm, this three bedroom two bathroom family home surpasses all expectations from its sensational style and luxurious finish to its multiple indoor and outdoor living areas, flowering garden and versatile OSP. Just around the corner from Port Melbourne Primary in a quiet period lined street, a white picket gate and gorgeous garden frame its enchanting English Cottage profile revealing nothing of the superb surprise within. Once inside, original details such as high character ceilings and early windows have been woven into the fabric of a sensational contemporary home defined by its superior quality and acute attention to detail. A dining domain with fireplace and magnificent entertainer's kitchen featuring 2pac soft close cabinetry, granite benchtops and a full range of De Dietrich appliances precede a brilliantly bright living room bookended by bifold doors that integrate two decks for year round entertaining. At the rear, a rumpus/home office doubles as garage parking via rear ROW. Three bedrooms include the oversized main positioned downstairs with extensive BIRs/storage, designer ensuite and deck access plus two additional bedrooms located upstairs with a magazine ready bathroom. A long list of quality inclusions starts with downstairs powder room/laundry, De Dietrich induction cooktop, multifunction pyroclean and steam ovens, technology hub, herringbone set Oak floors, plantation shutters, reverse cycle heating/cooling, water tank and remote gated OSP x2. Absolutely fabulous!