Dream big in a popular family hot spot only minutes to Peterson Reserve, sporting facilities, parklands, schools and thriving Highett Village & train station. Offering an outstanding opportunity to build a superb family residence or redevelopment (STCA) on a 603sqm allotment of prime land with favourable northeasterly aspects. The existing 3...
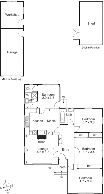
Dream big in a popular family hot spot only minutes to Peterson Reserve, sporting facilities, parklands, schools and thriving Highett Village & train station. Offering an outstanding opportunity to build a superb family residence or redevelopment (STCA) on a 603sqm allotment of prime land with favourable northeasterly aspects. The existing 3 bedroom home in mostly original condition features entry, family lounge (reverse cycle A/C & gas heating), spacious bedrooms with built in robes, retro bathroom, laundry with shower and a bright, functional kitchen with meals boasting a classic 1950's wood burning stove. A traditional sunroom steps out to a big, sunny backyard filled with lush palm trees and a garage, workshop, shed & cubby. An easy update to accentuate delightful period details including high ceilings & timber accents gives buyers the option to rent out or move-in whilst waiting for plans & approvals. Don't miss your chance to start a sought after Bayside lifestyle in an excellent low traffic street in close proximity to the beach in one direction & Southland in the other. For more information about this home & land package with outstanding potential please contact Andrew Campbell at Buxton Brighton on 0419 366 545
Listing Website