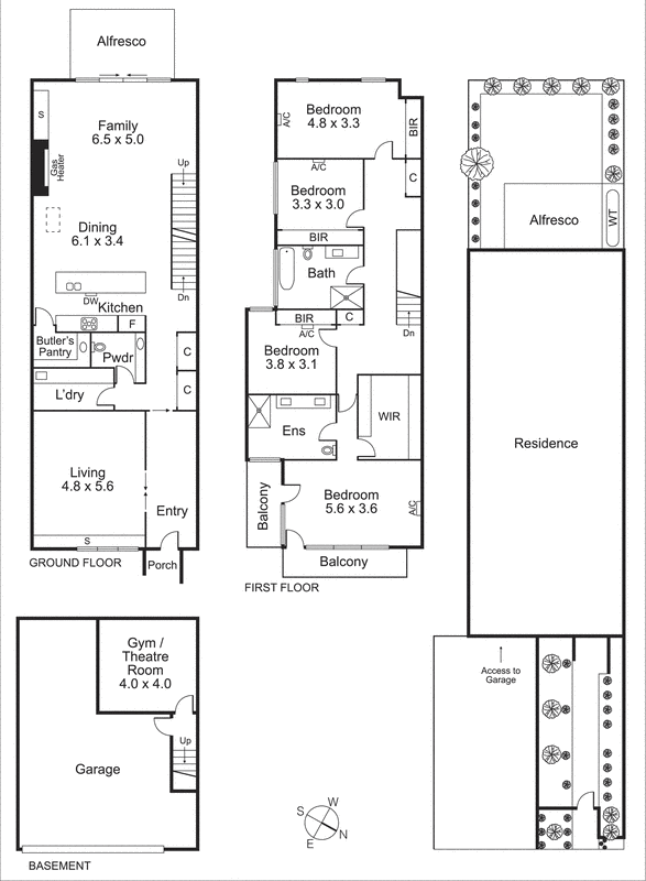
Architectural, accommodating and situated on the edge of the bay, this four bedroom, 2.5 bathroom, multi-zone home offers spectacular living over three levels and around 41 sqs. From innovative architect, Scott Shelton, this breathtaking residence offers a traditional ground-floor plan with formal and casual zones around a state-of-the-art Smeg...
Architectural, accommodating and situated on the edge of the bay, this four bedroom, 2.5 bathroom, multi-zone home offers spectacular living over three levels and around 41 sqs. From innovative architect, Scott Shelton, this breathtaking residence offers a traditional ground-floor plan with formal and casual zones around a state-of-the-art Smeg kitchen, a dedicated first-floor sleeping level fronted by a spectacular master-suite and a bonus basement theatre or gym. There's even permits and stair-space for a rooftop deck if you want to rise above it all!
Glamorously appointed with mirrored splashbacks, stone benchtops and custom-imported sandstone feature walls, this luxe home features a streetfront balcony and "secret" al fresco retreat for the master domain and a secluded second bedroom with a tip-toe bay glimpse. Even the practicalities of this 6.5 Star Energy rated home have a touch of glam - with a glossy stone-finish fully-tiled butlers' pantry, deluxe individual climate control for every room, double glazing, a 4000L tank, solar-hot water and generous three car basement garaging.
Lock-and-leave or fit a family, this is low-maintenance luxury with gloss, glamour and a great beachside address. For more information about this beachside residence contact Mark Earle
Listing Website