With elegant interiors, exceptional proportions and an elite bayside position, this is period perfect living without peer.
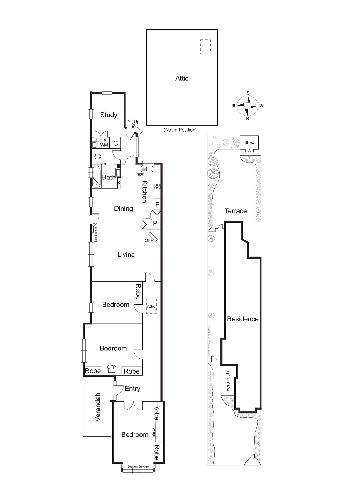
A superior example of the era with a beautifully detailed backdrop of high ornate ceilings, double cornices, original hardwood floors and open fireplaces, this 3-bedroom plus study home goes beyond its high-gabled, leadlit...
With elegant interiors, exceptional proportions and an elite bayside position, this is period perfect living without peer.
A superior example of the era with a beautifully detailed backdrop of high ornate ceilings, double cornices, original hardwood floors and open fireplaces, this 3-bedroom plus study home goes beyond its high-gabled, leadlit entry to provide fan-cooled bedrooms including a window-seat for the main with storage, an expansive family zone with room to lounge and dine plus paved outdoor entertaining amidst manicured gardens and privacy-enhancing hedges.
Well appointed with stainless steel appliances in the highly functional kitchen, full height tiling in the modern bathroom and a garden-view study, this heated, air-conditioned (to living) and alarmed home has a mix of plantation shutters and timber venetian blinds, robes for every bedroom (including his & hers in 2) and off street parking for 2 cars.
This period beauty even comes with a prestige location - Just one block behind the restaurants, railway, bars and baristas of Bay Streets iconic strip, a walk to the foreshore and dog friendly beach and minutes to prestigious primary and private schools.
The hard work has already been done with approved plans and permits for a rear extension and renovation designed by acclaimed architects Tecture, or move in and enjoy the accommodation the property already offers.
ALL ENQUIRIES MUST INCLUDE A CONTACT NUMBER.
Listing Website