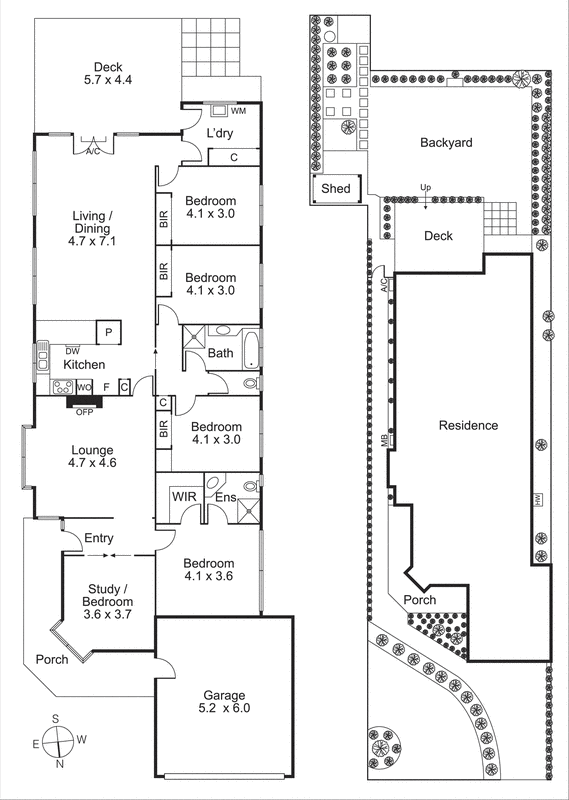
Inspired accommodation meets the ultimate beachside-of-Hampton St location in this period-inspired beauty! Sympathetically styled to suit this prized period precinct, this versatile single-level home stretches deep with up to five bedrooms, two bathrooms and two living zones in a family-wise single-level floorplan.
Cleverly zoned with a gracious...
Inspired accommodation meets the ultimate beachside-of-Hampton St location in this period-inspired beauty! Sympathetically styled to suit this prized period precinct, this versatile single-level home stretches deep with up to five bedrooms, two bathrooms and two living zones in a family-wise single-level floorplan.
Cleverly zoned with a gracious master-suite privately to the front, a spacious kids' wing to the side and free-flowing formal and casual zones in between, this spacious home even has a possible fifth bedroom or third living area in a sizeable bay-windowed home-office. Drawing inspiration from the past (with leadlight, a curvaceous fireplace and gracious return veranda), the home offers modern comforts including quality appliances for the timeless timber kitchen, ducted heating plus split-system air-conditioning and a generous double auto-garage plus parking.
Immaculately presented for today with scope to makeover and capitalise on 6546 sqft/608sqm grounds tomorrow, this is timeless living in a location to love for a lifetime. For more information about this well-located family home contact Christian Hegarty
Listing Website