'Wahroonga' circa 1906 a majestic family estate harmoniously restored to showcase Federation grandeur, gracious proportions & contemporary comfort. Magnificently situated within approx. 1076sqm of manicured botanic gardens in North Brighton's premier locale just minutes to Martin Street Village shopping, eateries & station, elite schools & the bay....
'Wahroonga' circa 1906 a majestic family estate harmoniously restored to showcase Federation grandeur, gracious proportions & contemporary comfort. Magnificently situated within approx. 1076sqm of manicured botanic gardens in North Brighton's premier locale just minutes to Martin Street Village shopping, eateries & station, elite schools & the bay.
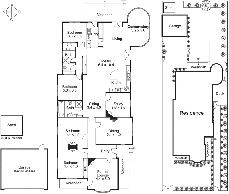
Restored with meticulous integrity and attention to detail rich heritage features inside and out include timber frieze fretwork, soaring 13.6 foot pressed metal ceilings, ornate roses, five panelled doors, leadlight windows, 5 marble open fireplaces, stunning Federation colours, tuck pointed brick work & even a re-pitched beautifully adorned slate roof.
Baltic pine polished boards sweep through a stunning formal lounge with semi-circular bay window & marble fireplace, beautiful spacious master (built in robes), second bedroom (OFP) and a glorious formal dining room with a roaring fire for grand scale entertaining.
A luxuriously large extension continues the theme offering an elegant study/5th bedroom (OFP), granite tiled bathroom & a clever kids' accommodation wing with 2 further bedrooms both with built in robes & access to a sleek marble finished 2nd bathroom.
The light filled, air conditioned family domain encompasses a large chef's kitchen boasting a rich Jarrah island, granite benches & a stainless steel Nardi range cooker, living, dining & a spectacular conservatory overlooking formal gardens.
Expansive rear grounds feature decked & herringbone paved entertaining areas, spectacular lawns & a long aggregate drive that will delight children of all ages with ample room to play and rest under the shade of a 100 year old Norfolk Pine & Eucalypt.
This distinguished example of Federation era housing with ducted heating, large laundry, excellent storage, watering system, shed & remote access double garage with auto gated parking is the epitome gracious Bayside living. For more information about this family sized period home in garden surrounds please contact Lisa Comben at Buxton Brighton on 0408 560 842 or Bert Stewart on 0418 350 199
Listing Website