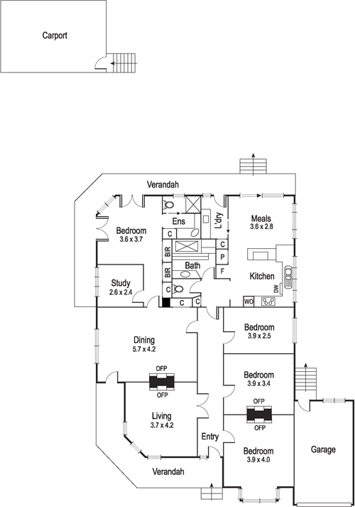
This simply gorgeous Victorian era home offers all the grace and charm you can imagine with all the comforts, location and space required of a modern family home.
With a fabulous floor plan that offers a multitude of different options for the home to accommodate almost any blend of family this property could be either four bedrooms plus two...
This simply gorgeous Victorian era home offers all the grace and charm you can imagine with all the comforts, location and space required of a modern family home.
With a fabulous floor plan that offers a multitude of different options for the home to accommodate almost any blend of family this property could be either four bedrooms plus two living zones and a study or a generous five bedroom home.
Upon entry you are captured by the character and detail of the home and the warmth of a bygone era. The bedrooms are all of generous proportions with four having BIR's, decorative fireplaces and the master bedroom features en-suite and simply masses of storage.
A formal living or family room with polished boards and open, working fireplace with a magnificent Italian light fitting and access to one of the wrap around verandahs is a gorgeous room for the family to relax and off this room is also a sizeable study or second TV room.
The kitchen is country cottage in style with wooden benchtops, ample storage, gas cooktop, dishwasher in a high vaulted ceiling room that opens to the meals area and in turn flows on to the backyard – perfect for keeping an eye on the kids!
The family bathroom is large with shower over bath and separate WC.
With ducted heating throughout, two split systems providing air conditioning in the kitchen and master bedroom, lush carpets in the bedrooms and polished boards throughout the remainder, large separate laundry, plenty of space outside for entertaining and the kids to play, plus a single enclosed garage and generous carport in the quiet and family friendly Gipsy village, 8 mins walk to the beach, shops, schools and Sandringham train station, this represents a wonderful place to live.
Garden maintenance included.
*** PLEASE REGISTER YOUR INTEREST VIA EMAIL AND YOU WILL BE CONTACTED IN RELATION TO VIEWING TIMES ***