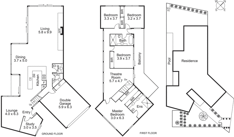
Nestled in an exclusive cul de sac only moments from Church Street shopping, dining & station, this architecturally designed 4 bedroom plus study residence offers an abundance of space & light across two breathtaking levels.
A striking contemporary façade introduces dual living zones wrapped around a shimmering lap pool with atrium style dining &...
Nestled in an exclusive cul de sac only moments from Church Street shopping, dining & station, this architecturally designed 4 bedroom plus study residence offers an abundance of space & light across two breathtaking levels.
A striking contemporary façade introduces dual living zones wrapped around a shimmering lap pool with atrium style dining & spacious, outward focused living (gas pebble fire place). Travertine flooring extends out through huge glass sliders to create a free flowing, open plan layout culminating in private entertaining set in low maintenance, sunlit gardens.
An epicurean kitchen appointed with endless Caesarstone bench tops & storage, breakfast bar & stainless steel Miele appliances is at the heart of the expansive living domain.
Upstairs the master bedroom with walk in robe & marbled, dual vanity en suite complements a rumpus/ theatre retreat & large terrace, 3 additional bedrooms with fitted robes & a deluxe family bathroom.
This fully automated home with C-Bus controls, smart wiring & ducted heating/cooling/vacuum sets the benchmark in luxury & cutting edge design. Other prestige extras include an executive study/home office with courtyard, powder room, intercom, alarm & direct access automatic double garage close to schools & the beach.
For more information about this show-stopping, low maintenance residence please contact Stefan Whiting at Buxton Brighton on 0411 473 153
Listing Website