Put yourself in the heart of the sandbelt with perfect presentation, poolside entertaining and a prime family position.
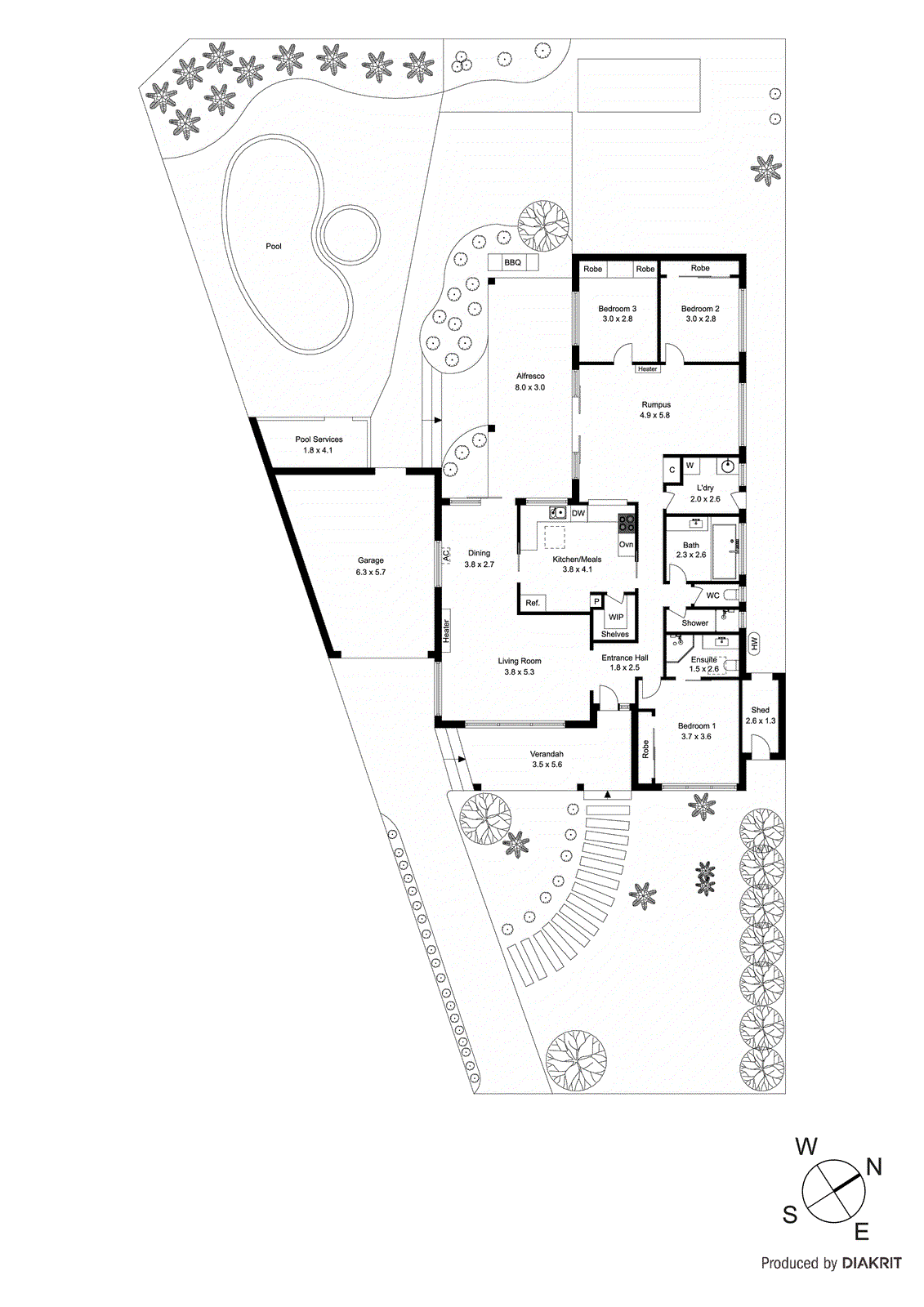
Designed for the growing family with multiple living zones across a 3-bedroom, 2-bathroom floorplan, this timeless brick beauty comes with classic L-shaped living and dining, a rumpus retreat for the kids’ bedroom wing and a...
Put yourself in the heart of the sandbelt with perfect presentation, poolside entertaining and a prime family position.
Designed for the growing family with multiple living zones across a 3-bedroom, 2-bathroom floorplan, this timeless brick beauty comes with classic L-shaped living and dining, a rumpus retreat for the kids’ bedroom wing and a sun-catching alfresco zone for all-weather enjoyment.
Starring stylish bathrooms including a modern ensuite for the master, a meals area for the quality kitchen plus a generous-sized pool and spa in wide west facing rear gardens, this heated and air-conditioned home provides great storage areas (including a shed, walk-in pantry and built-in robes) and a large lock up garage beyond off street parking.
With scope to render and renovate with your own contemporary flair, lease out for great rental rewards or move right in and enjoy as is, this 626sqm approx. property even provides a lifetime location – between Yarra Yarra and Commonwealth Golf Clubs with parks and sports grounds nearby and a fast commute to Southland retail precinct.
*Please Note* Buxton Real Estate may refuse to provide further information about the property should you prefer not to disclose your Full Contact Details including Phone Number. Photo id required upon entering the property.