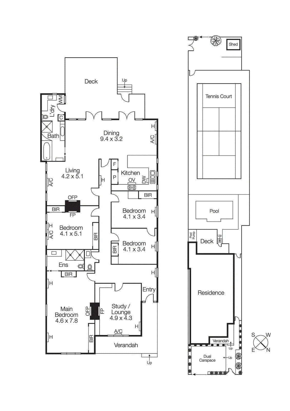
Luxuriate in period grandeur designed to entertain, this magnificent 4-bedroom plus study residence showcases family prestige with a heated pool and tennis court on almost 1,200sqm (approx) of prized...
Luxuriate in period grandeur designed to entertain, this magnificent 4-bedroom plus study residence showcases family prestige with a heated pool and tennis court on almost 1,200sqm (approx) of prized land. Central to everything in a sought after North Brighton pocket surrounded by parkland, shopping and dining precincts, schools and the beach.
A storybook, block-fronted façade introduces soaring 3.6m ceilings and dark floorboards sweeping through exceptionally proportioned spaces for the whole family. An expansive indoor/outdoor domain is the heart of the home with a family lounge warmed by an open fire. A stone-wrapped kitchen impresses featuring quality appliances (Glem freestanding cooker) and custom cabinetry, while dining sparkles under gorgeous chandeliers.
Outside resort-style entertaining stars an elevated pavilion fenced with security glass to provide plenty of open space for poolside fun, sandstone pavers and grassy expanses are bathed in northwesterly sun. The swimming pool is 10mx4m, fully tiled and solar heated, and a brand new floodlit tennis court is finished with top of the range mod-grass and extra high fencing.
Generously accommodating, a stunning, oversized master suite flaunts a marble open fireplace, his & hers built in robes and stone vanity en suite (double shower). Enchanting children’s bedrooms with plenty of built in storage feature an adorable interconnecting door. A huge fourth bedroom (built in robes and open fireplace) and full-size study/library (shelving and marble open fireplace) further enhances family flexibility.
Beautifully styled with an air of sophistication, a wealth of period details and all the modern day comforts. Hydronic heating, reverse cycle air conditioning (split systems in every room), Plantation Shutters, guest powder room, extensive attic storage, laundry and main bathroom with pool access, security alarm and auto-gated parking for 2-cars.
Surprisingly low maintenance within minutes to the train and tram, close to the city, Elwood, Elsternwick and St Kilda, this breathtaking home delivers a lifestyle like no other.
For more information about this prestige period home with pool and tennis court please call Halli Moore at Buxton Brighton on 0403 777 661.
