ON-SITE AUCTION THIS SATURDAY 21ST NOVEMEBER 1.30PM UNLESS SOLD PRIOR - Inspect from 1:00pm - 1:30pm “Inspect by pre-registration only, attendance limits are capped and all attendees must be...
ON-SITE AUCTION THIS SATURDAY 21ST NOVEMEBER 1.30PM UNLESS SOLD PRIOR - Inspect from 1:00pm - 1:30pm
“Inspect by pre-registration only, attendance limits are capped and all attendees must be pre-registered, please contact the agent to secure your spot.”
Perfectly positioned metres from the Bay and within walking distance of an array of elite schools this classic Beaumaris home offers immediately comfortable accommodation with plenty of potential to renovate and add value over time or even to capitalise on the fabulous elevated position and build a modern masterpiece in years to come.
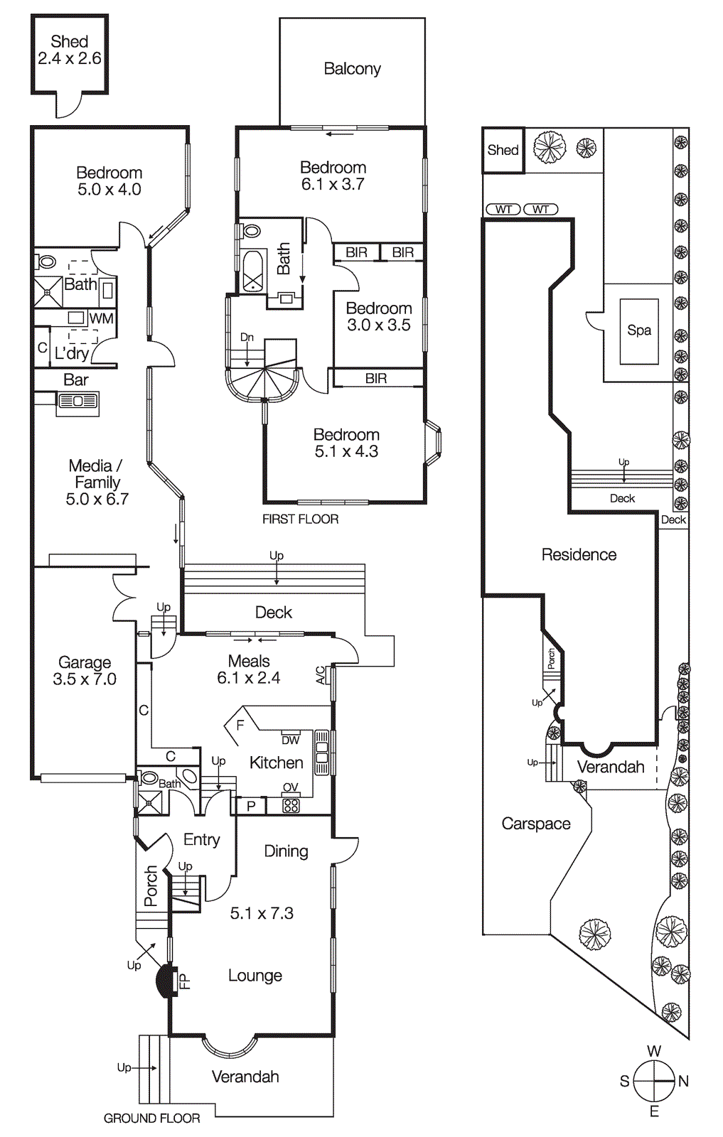
The ground floor features a large front living room with open fireplace and dining area, split level down to the kitchen/meals area with sliding doors leading to a deck and fabulous paved entertaining area. There is a rear extension comprising large family room with a bar, bathroom with skylight, laundry and a lovely large bedroom with sliding door to the garden. With a wall of windows and doors running the entire length of this area it is streaming with wonderful northerly light and could easily be utilised as a self-contained accommodation wing.
A fabulous curved stairwell with views over the treetops leads to the first floor which comprises two huge bedrooms, each with built in wardrobes and one with its own private balcony with bay glimpses. With ceiling fans to all bedrooms, a third double bedroom also with built in wardrobes and a sparkling family bathroom complete the picture.
Outside is a family paradise with the aforementioned paved entertaining area, plenty of lawn for games and pets and the whole family will enjoy a dip in the swim-spa which is gas-heated for use all-year round. There is also a single garage with workshop along with driveway parking for 2 cars.
The location is the real star of the show with the beach and beautiful Illaroo Reserve and playground on the doorstep as well as the convenience of having some of Melbourne’s most sought after schools all within easy reach. The school run could become a thing of the past with Mentone Grammar, Mentone Girls Secondary, St Bedes, Kilbreda, Mentone Girls Grammar and Beaumaris Secondary all within either walking or cycling distance. Local shopping can be found at Charman Road, Seaview, Mentone or the Concourse whilst Mentone train station and the 825 bus to Southland are both within a short walk.
For more information, please contact Sam Harrison or Peter Hickey.
