Inspect by pre-registration only, attendance limits are capped and all attendees must be pre-registered, please contact the agent to secure your spot.
‘Lynton’ – an enchanting Victorian circa 1879 offering flexible family living and lifestyle appeal on a substantial 1,278sqm approx garden allotment in the heart of Brighton. This inviting...
Inspect by pre-registration only, attendance limits are capped and all attendees must be pre-registered, please contact the agent to secure your spot.
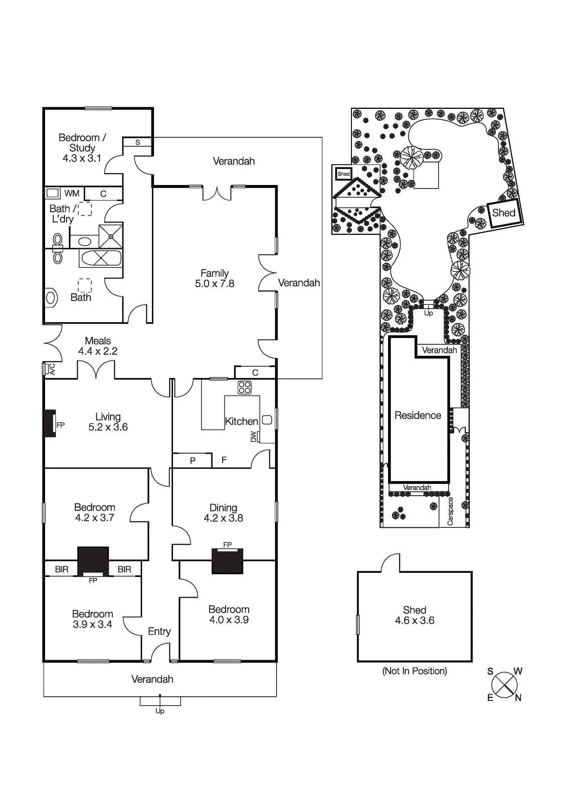
‘Lynton’ – an enchanting Victorian circa 1879 offering flexible family living and lifestyle appeal on a substantial 1,278sqm approx garden allotment in the heart of Brighton. This inviting 4-bedroom home is perfect today with the potential to create a magnificent period showpiece when the time is right.
The original quarters have been beautifully updated to feature 3 spacious bedrooms, one with built in robes and open fireplace, a stunning formal dining room (open fireplace) and cosy lounge (open fireplace). The kitchen has been custom designed to cook and entertain with sleek marble benches, prestige appliances and ample soft close storage.
Natural light steams through a glassed, conservatory style meals area while family living spills out to picturesque, al fresco entertaining overlooking endless, manicured gardens bursting with colour. Rolling lawns are bathed in westerly sunshine providing an idyllic setting for picnics, playtime or grand scale occasions under the shade of a spectacular Oak tree. A childhood wonderland to explore, this unique space is sure to lure kids away from screens and back into the great outdoors.
A guest or teen zone boasts a fourth bedroom with its own bathroom and outdoor access. The family bathroom is generous and has been designed to complement the homes heritage charm. Graced with a wealth of period details including deep timber lined verandas, iron lace work, ceiling roses and Herringbone Parquetry.
Ducted heating and reverse cycle cooling ensures modern comfort, while driveway parking and an exclusive address between Church and Bay Streets adds to the appeal. Stroll to shops, restaurants, parks, transport and leading schools (Brighton Primary, Firbank & Brighton Grammar Schools) with Brighton’s iconic Bathing Box Beach so close by.
This is a rare opportunity to write the next chapter in this significant homes’ proud history and create a new generation of family memories.
For more information about this family focused Victorian please contact Ross Walker on 0425 836 613 at Buxton Brighton.