Inspection via appointment. Please call Tom 0488 017 500. Retreat to the luxurious surrounds of this bespoke sanctuary nestled on a blue chip corner in one of Brighton’s most distinguished beachside...
Inspection via appointment. Please call Tom 0488 017 500.
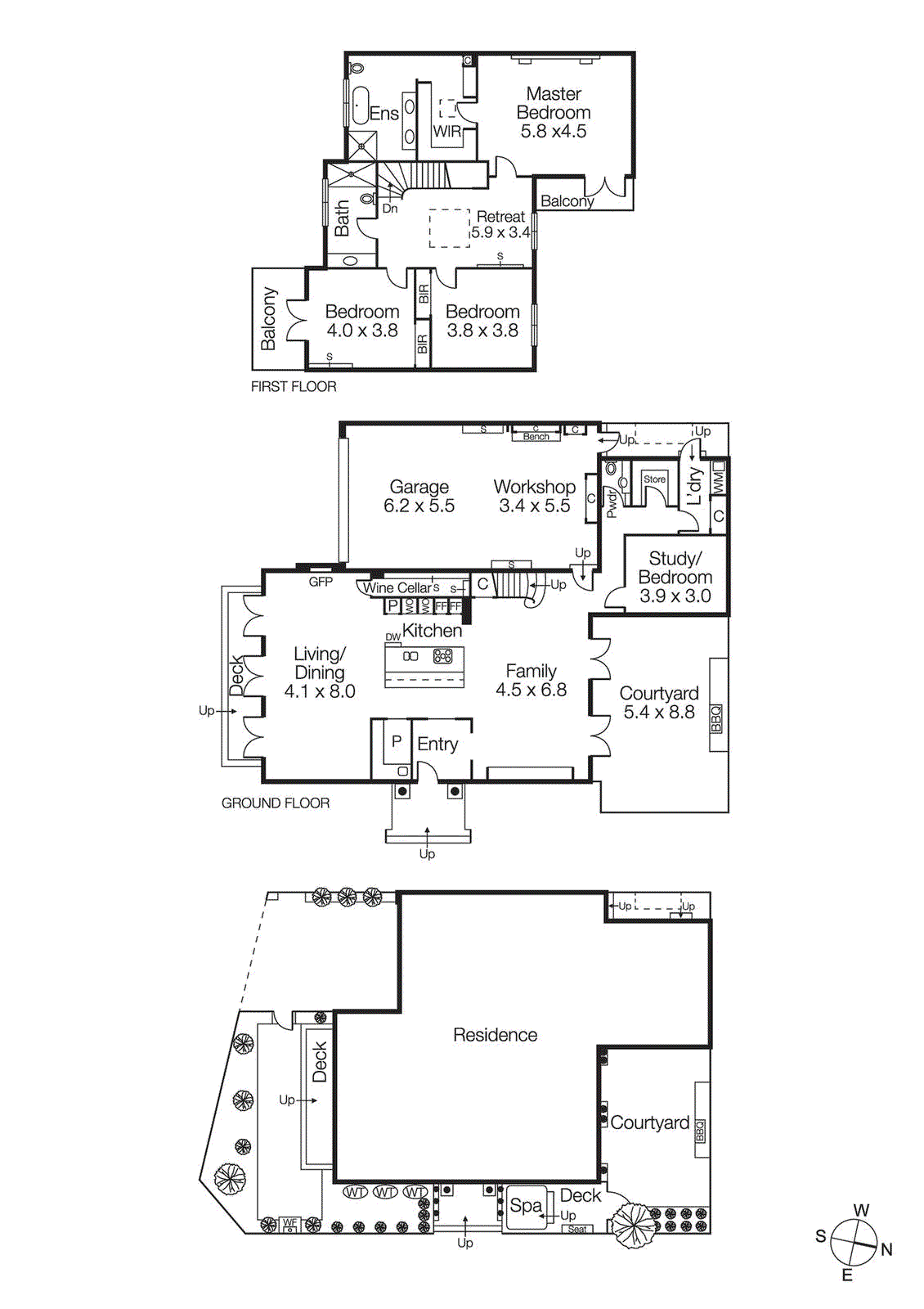
Retreat to the luxurious surrounds of this bespoke sanctuary nestled on a blue chip corner in one of Brighton’s most distinguished beachside locales. Showcasing superior living, the 4-bedroom, 2.5-bathroom home has been meticulously transformed under the watchful eye of a perfectionist owner to deliver lifestyle excellence in a leafy yet low maintenance setting.
Dappled sunlight illuminates generous interiors custom designed to entertain. Generously proportioned, dual living zones spill out through double French doors to a pair of utterly private courtyards creating a seamless al fresco flow. These outdoor areas provide an idyllic backdrop for relaxing in daylong sunshine, summer BBQs (integrated Weber Q) or just soaking up the atmosphere in a deluxe 6-person, heated spa.
The spectacular Touch Wood® kitchen is the focal point of this entertainer’s haven with its handcrafted polished concrete and Messmate hardwood island bench/breakfast bar the centrepiece. Customised Blum joinery, Barazza appliances, integrated Hafele refrigeration and Miele dishwasher ensure high-end style along with superb functionality. The butler’s pantry and 300-bottle wine cellar are also testament to the exacting level of detail displayed throughout this designer home.
A brilliant two-storey layout offers sought after versatility with a ground level retreat boasting a top of the range, Italian Clei convertible chaise lounge/wall bed making it the perfect quarters for guests or adult children. A stunning tiled powder room, marble-topped laundry and custom storage complete the lower floor, while upstairs continues to impress. A feature sky-light brightens a spacious third living zone with ample space to study, rest or play.
Two queen-sized bedrooms with built-in robes share one of two luxuriously appointed bathrooms, this one is finished with Carrara marble tiles and vanity. The master suite is something to behold, exceptionally generous with a bespoke feature wall and ceiling fan. The walk-in dressing room flaunts abundant his & hers storage solutions, while the dual-vanity, custom en suite will take your breath away, finished with exquisite vien-matched Calacatta porcelain and brushed brass accents.
Every element in this home has been considered such as a made-to-order media unit/library featuring a quilted leather screen in the lounge, Jetmaster gas fireplace in the living/dining zone, two upper level terraces and heated towel rails in the bathrooms. Also ducted heating/cooling zoned to each room, ducted vacuum, Plantation Shutters throughout and engineered Blonde Oak flooring plus security system and double-plus remote garage with full workshop.
When only the best will do, this sublime property offers a rare opportunity for discerning buyers to simply move-in and enjoy first-class amenities. An easy stroll to Green Point foreshore gardens and beachfront, Brighton Beach train station and Were Street village with its gourmet grocer and cafes. Also close to leading schools, Church and Hampton streets, Dendy Park and Brighton Golf Course.
For more information about this blue chip, bespoke retreat please contact Tom Davidson at Buxton Brighton on 0488 017 500.
