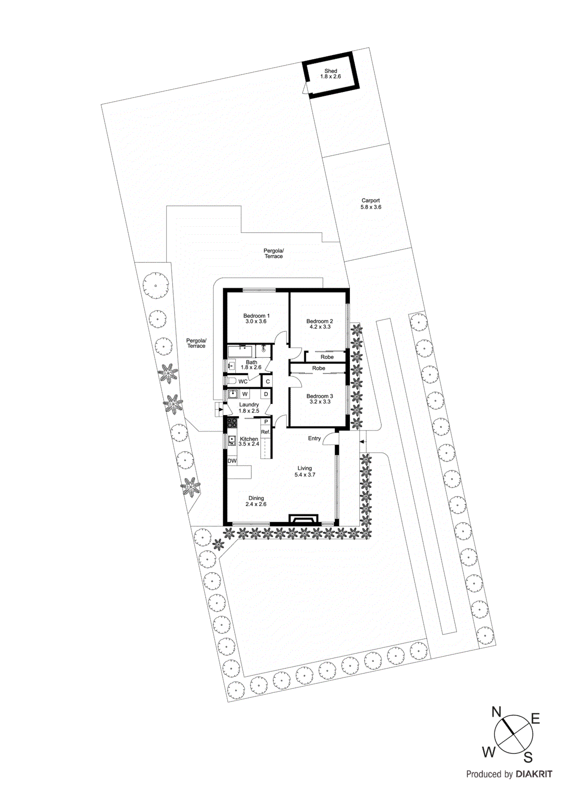
A sheer delight with superb single-level living, lovely light-filled interior dimensions and a private north-facing rear entertainer’s garden, this attractive three bedroom residence promises a relaxed, easy-care lifestyle in this sought after and convenient pocket.
Privately set behind high walls and established gardens, warm timber floors flow...
A sheer delight with superb single-level living, lovely light-filled interior dimensions and a private north-facing rear entertainer’s garden, this attractive three bedroom residence promises a relaxed, easy-care lifestyle in this sought after and convenient pocket.
Privately set behind high walls and established gardens, warm timber floors flow through the entrance hall to a sun-drenched open-plan living and dining area with gorgeous open fireplace.
Adjoining the dining area, a stylish kitchen is well-appointed with Bosch appliances and offers ample storage.
Outdoor entertaining is a breeze, with a generous undercover terrace providing the perfect place to relax and unwind with family and friends; while the children play in the deep rear gardens.
Enjoying leafy vistas, the family accommodation includes three spacious bedrooms, two with mirrored built-in robes, serviced by a bright bathroom featuring separate bath and shower.
Enhanced by ducted heating and cooling, fitted laundry, separate WC, shed, single carport, and ample off street parking.
Comfortable as is, this secluded haven also presents exciting future prospects to enhance if so desired (subject to Council approval).
In this wonderful location, strolling distance to Le Page Primary School, bus services, Southland Shopping Centre and train station, Cheltenham Secondary College, plus close proximity to the shops, cafes, restaurants and station of vibrant Cheltenham Village. For more information about this easy-care family home contact Romana Altman or Louise Herterich at Buxton Sandringham.