This 3 bedroom townhouse will tick all the right boxes for those starting out, starting over, looking to downsize or for a solid investment opportunity in sought after Bayside.
Perfectly positioned amongst lovely garden settings the home offers generous accommodation that has been freshly painted throughout with plenty of opportunity to add...
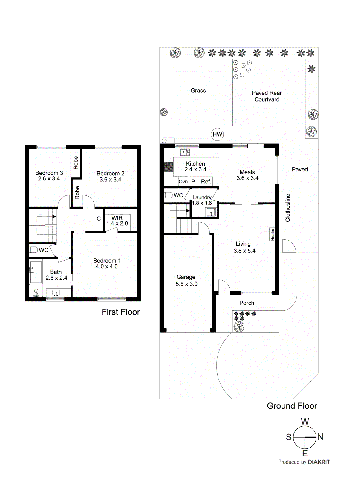
This 3 bedroom townhouse will tick all the right boxes for those starting out, starting over, looking to downsize or for a solid investment opportunity in sought after Bayside.
Perfectly positioned amongst lovely garden settings the home offers generous accommodation that has been freshly painted throughout with plenty of opportunity to add further value. There is a welcoming front living room with garden views opening to a bright and spacious kitchen and dining room with sliding door to the very charming and secure rear garden which is bathed in north-easterly sunshine and simply perfect for children and pets to play. A separate laundry and WC completes the downstairs whilst upstairs features a large master bedroom with walk in wardrobe and semi ensuite, 2 further large and sunny bedrooms each with built in wardrobes, large bathroom and separate WC. A handy single auto garage with internal access provides day to day convenience.
This home is conveniently located with a multitude of shopping and transport conveniences on the doorstep including Highett and Southland train stations and shopping. Highett Village with its fabulous array of cafes and restaurants is within a 5 minute walk whilst a couple of minutes by car will take you to the beautiful beaches of Sandringham, Black Rock and Hampton.
For more information about this terrific home please contact Sam Harrison.