You MUST register for an inspection and we ask that you also confirm your attendance. AN AGENT WILL NOT BE PRESENT IF YOU DO NOT REGISTER and CONFIRM. Your consideration and co-operation is appreciated.
This deceptively spacious brick residence offers a comfortable lifestyle with flexible indoor-outdoor living options, ideally suited for all...
You MUST register for an inspection and we ask that you also confirm your attendance. AN AGENT WILL NOT BE PRESENT IF YOU DO NOT REGISTER and CONFIRM. Your consideration and co-operation is appreciated.
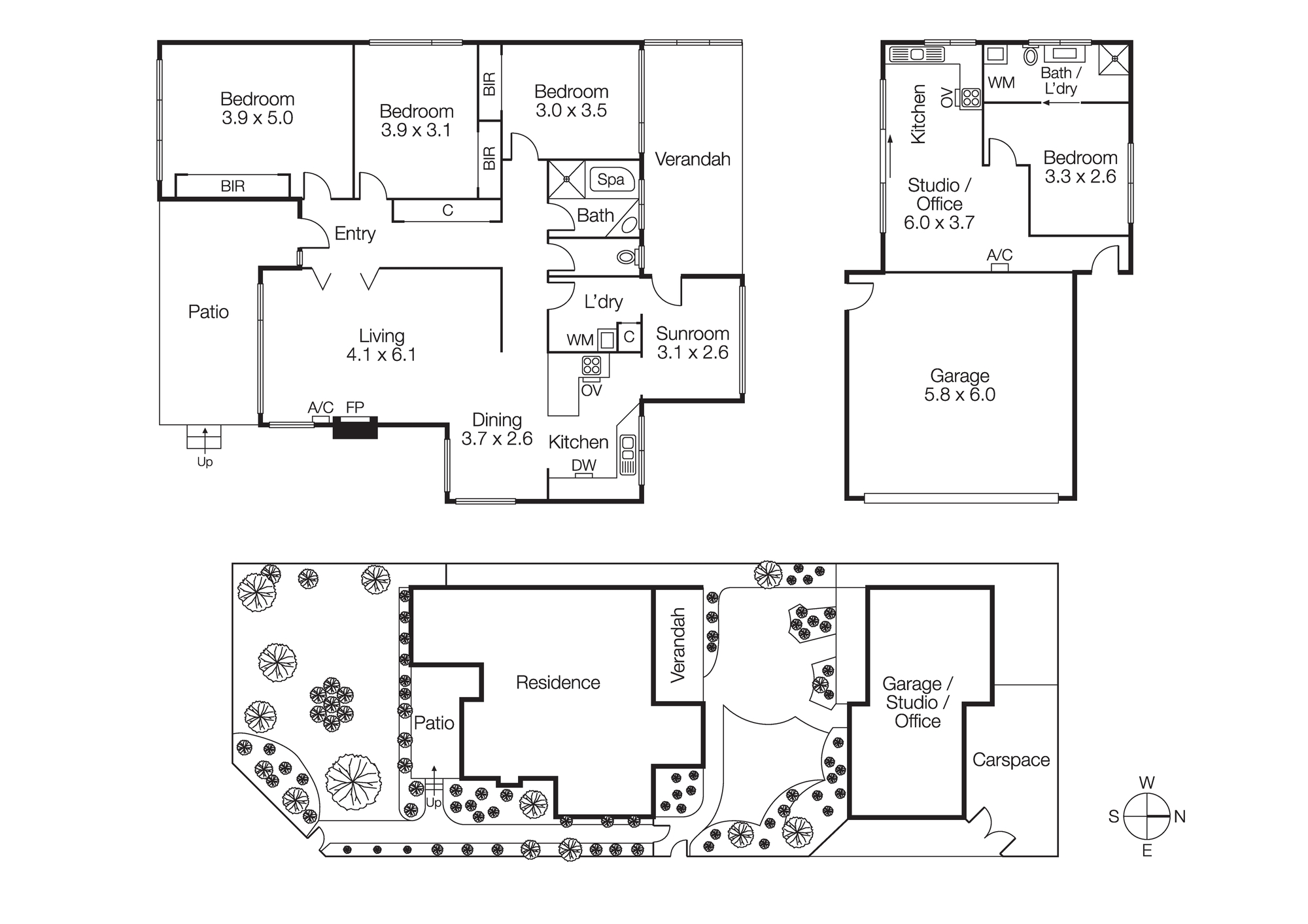
This deceptively spacious brick residence offers a comfortable lifestyle with flexible indoor-outdoor living options, ideally suited for all members of the family, both young and old. Freshly painted throughout with new floors and new window coverings.
With a welcoming entrance foyer leading into the traditional formal living and dining, one is instantly impressed with the open plan which is complimented further by the massive picture windows which adorn the entire home.
The kitchen is central to the home which has been expertly planned and designed where every available space is utilized and easily flows into either the informal sitting or dining areas nearby.
Accommodation within the main residence includes 3- bedrooms with built-in robes, family bathroom with separate shower recess and spa bath.
The rear dwelling offers 1-bedroom accommodation with ensuite/laundry, kitchen and lounge, which lends itself perfectly for either dual living or in-law accommodation, studio or home office.
The grounds overall are beautifully presented and feature an undercover outdoor area ideally suited for alfresco entertaining.
Car accommodation includes a generous double lock up garage plus plenty of open space on the side for boat, caravan, trailer, or additional cars.
Special features include gas ducted heating, split system heating and cooling, gas cooking, dishwasher, high ceilings and overhead fans.
Located in a family-friendly neighbourhood, take a short stroll to nearby cafes and shops, the wonderful Waves Leisure Centre, Westfield Southland Shopping Centre, quality local schools and public transport.
A truly fine home and so conveniently located where so many people aspire to live.