147 Now Sold! 147A Still Available 147 Asking 1,650,000 147a Asking 1,600,000 Live the free and easy life with individual appeal and absolute quality! Already commenced, due for completion in...
147 Now Sold! 147A Still Available
147 Asking 1,650,000
147a Asking 1,600,000
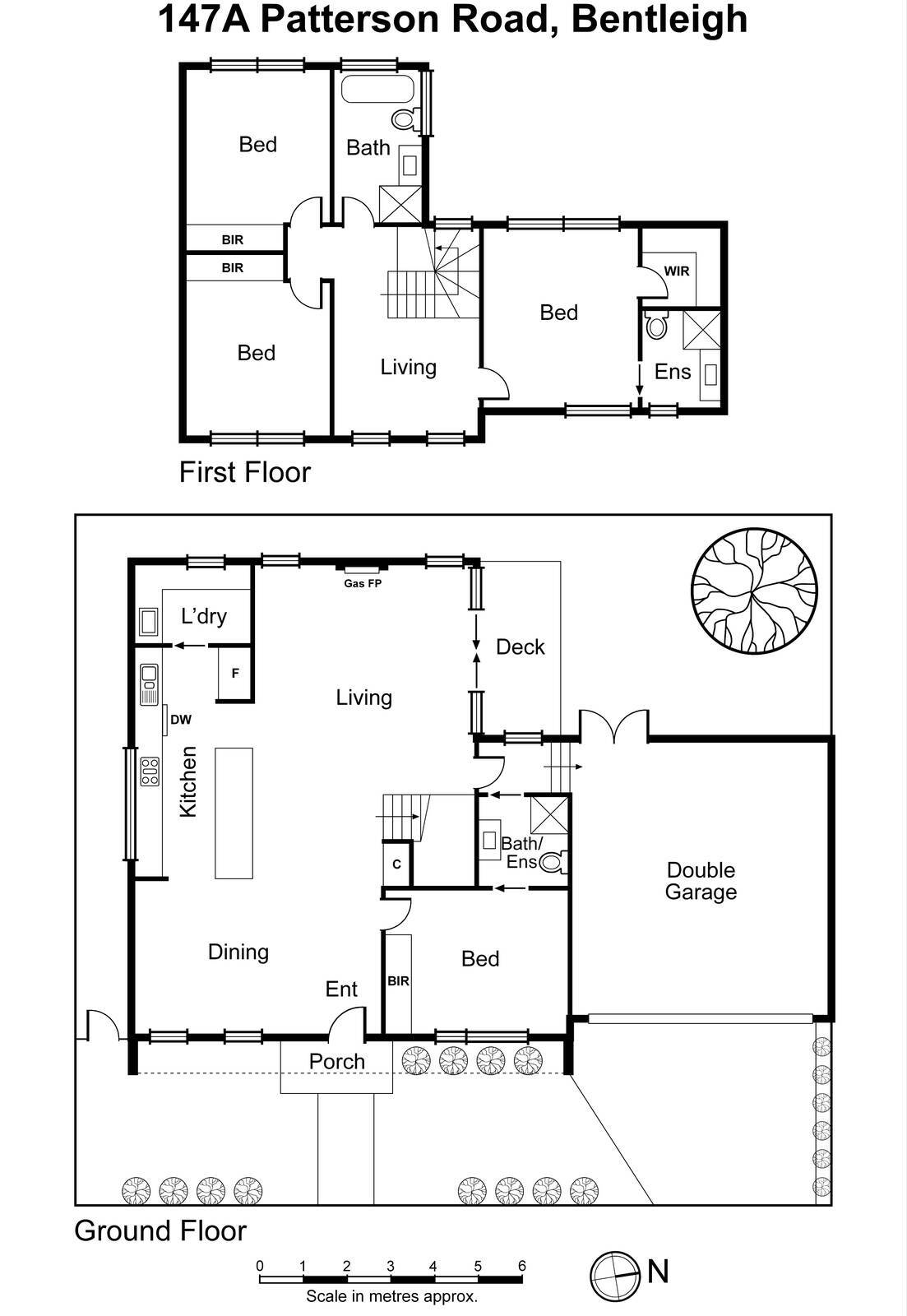
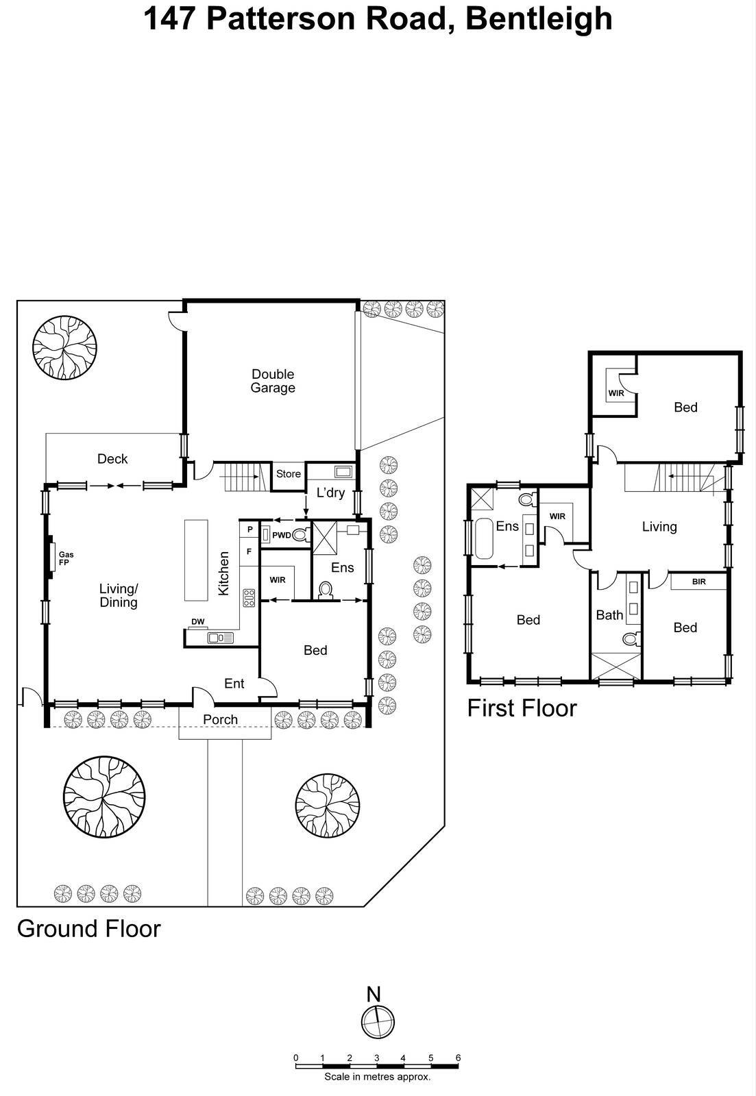
Live the free and easy life with individual appeal and absolute quality! Already commenced, due for completion in March 2022 and available for pre-purchase now, the latest project from leading-edge boutique builders, Silverline Homes, offers a choice of two freestanding family homes…each with an individual floorplan, a separate frontage (to Patterson Rd and Montreal St), impressive land, and both with the same substantial four bedroom, three bathroom, dual suite, dual living accommodation!
Designed in streamlined architectural style with bold presence on each frontage, these home will offer expansive open-plan living-dining around an elite Miele kitchen, a second living zone at the heart of the first-floor, and fully-tiled polished-porcelain bathrooms - including two ensuites for a choice of master-suite upstairs and down.
Specified in state-of-the-art style with satiny 2 Pack kitchen cabinetry topped by Quantum Quartz stone, plus more luxe stone for the bathrooms’ wall-hung vanities, each home will showcase amazing attention-to-detail with a Miele double-oven tower, Grand Oak flooring plus premium grade carpet. Unfolding beyond a custom-built hardwood pivoting entry door, each homes will feature the latest interiors - with squareset cornices, matt black tapware (and black vessel basins) and a freestanding ensuite bath.
Appointed in Silverline’s signature quality and style, all the high-tech appointments are here too – including individual reverse-cycle ducted climate control, Bosch alarm and ducted vacuum system…and, of course, full NBN connection! 6 Star Energy rated with double glazing, low-energy LED downlights (and stair-lights) and continuous hot-water, each home is set in creatively landscaped private gardens with 3000L water-storage. Even a letterbox with your own stylish street number will be installed!
Just 100m to Good Times cafe and the great little Tucker Rd shopping strip, this prestige project is prestigiously addressed within a minute of Patterson’s village shopping and Centre Rd’s cosmopolitan strip and in easy reach of great schools (including zoning for popular Tucker Rd Primary School).
Please Note: Internal photos are from builders previous projects
