INSPECTION BY PRIVATE APPOINTMENT, PLEASE CONTACT AGENT.
Substantial, single-level and so well-presented, this classic home is the complete package for a relaxed Sandringham life. Centred in a well-groomed group of just three this two bedroom single-level townhouse ticks all the boxes with a large lounge facing a privately fenced front...
INSPECTION BY PRIVATE APPOINTMENT, PLEASE CONTACT AGENT.
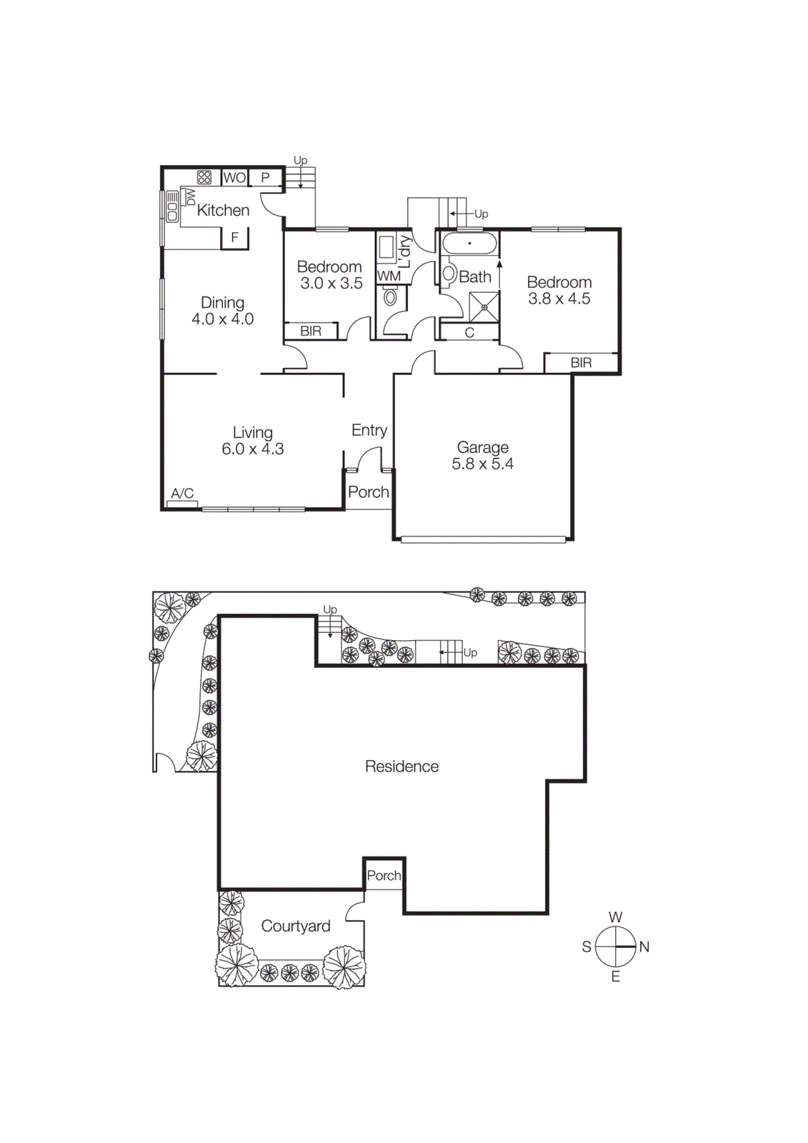
Substantial, single-level and so well-presented, this classic home is the complete package for a relaxed Sandringham life. Centred in a well-groomed group of just three this two bedroom single-level townhouse ticks all the boxes with a large lounge facing a privately fenced front courtyard, a quality kitchen overlooking a sizable separate dining-room, and a wraparound rear yard stretched out in the afternoon sun.
Cleverly accommodating with bedrooms separated by an elegant two-way ensuite-bathroom, this smart single-level design is appointed with a handy separate WC, a vast and versatile laundry and great storage with built-in robes and generous hallway closets. Even the landscaped gardens are first class with new limestone paving, lush plantings, and room to entertain or indulge a green thumb! Quality appointed with ducted heating, reverse-cycle air-conditioning and fan-cooling, all you need is packaged up here …including a rare double auto-garage easily accessed from a wide drive with a dedicated turning circle.
Walk to the beach, stroll to the cafes, find the bus to Southland and the station almost at the door, just 6 blocks to the bay and village, this single-level home is a complete classic!
For more information about this substantial single-level home contact Peter Hickey or Stefan Delyster at Buxton Sandringham.