Set on a sundrenched corner in a prized Brighton East locale, this gracious family classic is pretty as a picture with its clinker brick facade, blooming gardens and sparkling pool. Offered for the first time in six decades with the rare opportunity to beautifully renovate, build your dream home or develop a luxury pair (STCA) on a premium 730sqm...
Set on a sundrenched corner in a prized Brighton East locale, this gracious family classic is pretty as a picture with its clinker brick facade, blooming gardens and sparkling pool. Offered for the first time in six decades with the rare opportunity to beautifully renovate, build your dream home or develop a luxury pair (STCA) on a premium 730sqm (approx) of dual-frontage land.
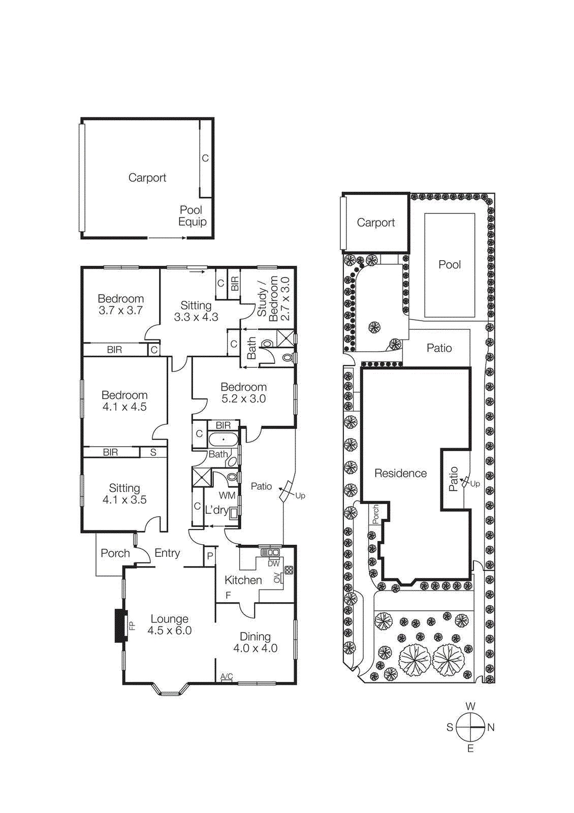
A spacious, family layout currently features an elegant bay-windowed lounge and formal dining room, while a quality kitchen is neat and bright. A full-size study or sitting room sits alongside the master bedroom (built-in robes). Kids enjoy their own zone with three more bedrooms (built-in robes) and a bathroom revolving around a sun-filled lounge. Centrally heated with reverse cycle air conditioning and an alarm system plus main bathroom, laundry and additional WC.
A private north-westerly backyard with pool and double carport takes advantage of a broad frontage and access to Were Street, while a second frontage to Comer basks in morning sunshine. Relish the blue chip lifestyle on offer with potential to set a new benchmark of Bayside living in a leafy neighbourhood sought for its proximity to Brighton Golf Course, Dendy Park, South Road schools (Haileybury & St Leonard’s), Hampton and Church Street shops, Brighton Beach station and Brighton’s popular beachfront.
For more information about this increasingly rare corner opportunity please contact Halli Moore at Buxton Brighton on 0403 777 661.