Savour an outstanding lifestyle investment in a brilliant beachside locale with this high design, multi-level home superbly located between vibrant Hampton Street shops, cafes & station, leading schools and the glittering bay. Taking low maintenance luxury to a new level and topped with a private roof terrace looking out to panoramic water views...
Savour an outstanding lifestyle investment in a brilliant beachside locale with this high design, multi-level home superbly located between vibrant Hampton Street shops, cafes & station, leading schools and the glittering bay. Taking low maintenance luxury to a new level and topped with a private roof terrace looking out to panoramic water views this 2-bedroom, 2.5-bathroom residence is your gateway to beautiful bayside.
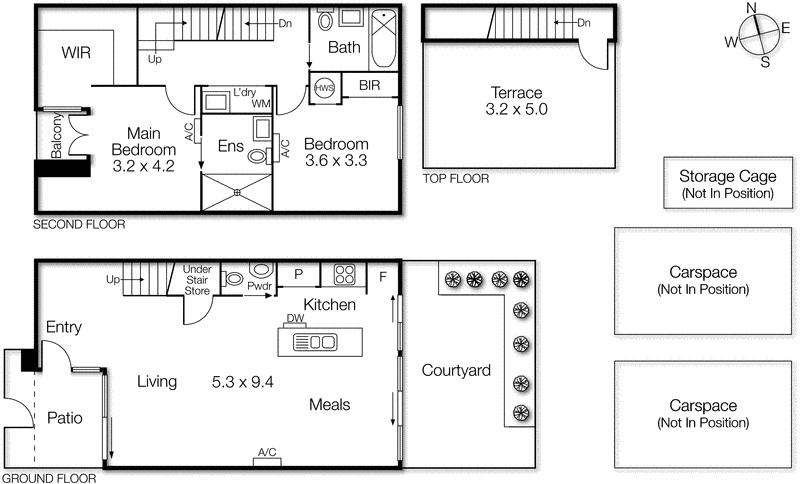
A contemporary ground floor layout, flanked by private outdoor areas, provides a seamless flow from light filled indoor living and dining zones to relaxed terraced entertaining. Or impress your guests with drinks on the third floor rooftop and take in stunning bay views rarely seen in new developments. The open plan kitchen is smart and stylish featuring a smooth, stone waterfall island plus quality Blanco appliances and ample cupboard space, with adjacent powder room and under-stair storage.
Two peaceful bedrooms provide mid level seclusion with the master boasting a hotel-style dressing room/WIR, deluxe en suite and a Juliette balcony to catch the sea breeze. The second bedroom offers built in robes and is serviced by a large, sleek, main bathroom with floating vanity and glass shower. A concealed European laundry is also conveniently located on this floor.
Designer details include stunning hardwood flooring, full-height glazing, reverse cycle air conditioning to all living areas & secure video intercom plus basement storage room and basement parking for 2 cars. Enjoy easy care excellence just off Hampton's prized main street with city transport, foreshore walking & cycling tracks and boutique shopping at your door.
For more information about this value packed, high end home please contact Jack Johnstone at Buxton Brighton on 0426 241 841.
Listing Website