Perfectly positioned to enjoy the famed inner-west lifestyle, this stylishly renovated two-bedroom Seddon home has to be seen to be believed. With a knockout kitchen and entertaining space, front and...
Perfectly positioned to enjoy the famed inner-west lifestyle, this stylishly renovated two-bedroom Seddon home has to be seen to be believed. With a knockout kitchen and entertaining space, front and back gardens, and rear laneway access for easy parking, this home will appeal to first homebuyers and investors alike. Set on 219sqm just 8km from Melbourne’s vibrant CBD, this stunning home is the perfect move-right-in prospect.
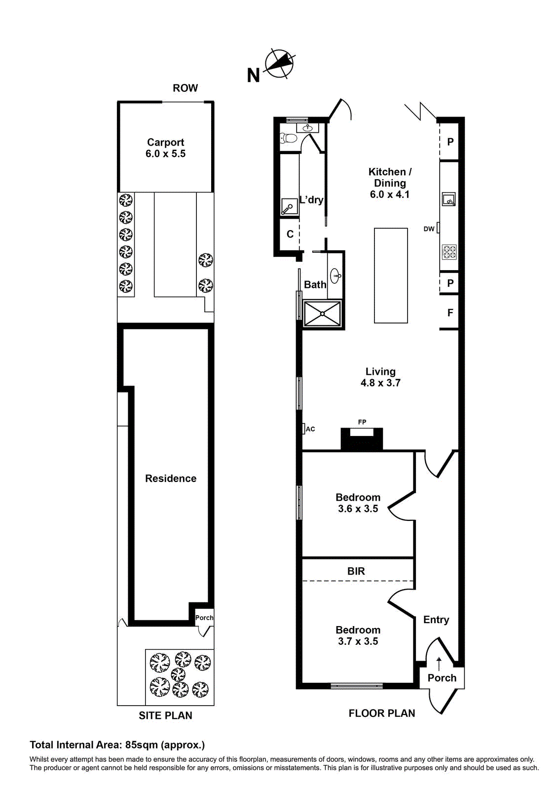
A charming solid brick period façade and picket fence give this home loads of street appeal. The entry hall provides instant respite from the buzz of urban life and invites you to make your way to the elegant living room. Nights will be happily spent here in front of the feature fireplace.
The living space opens out to the showstopping kitchen and dining space, where you’ll be proud to entertain guests for dinner parties and cocktail nights. The kitchen sweeps along the full length of the wall, boasting loads of storage behind sleek cabinetry, a double fridge recess, integrated dishwasher, and huge island bench providing extra preparation space or the perfect spot for casual meals. With plenty of room for a large dining table, this stunning space becomes even better once the tri-fold doors are retracted to reveal the garden, creating an enviable indoor/outdoor entertaining space. The private courtyard features a paved al fresco dining area, a mature garden with lime, kaffir lime and blood orange trees, a small patch of lawn and secure undercover carport providing off-street parking via the rear laneway – a highly coveted feature in this buzzing inner-west location.
The two spacious bedrooms boast period features, and the master includes a huge built-in robe for easy storage. You’ll love the luxe hotel-style bathroom, with walk-in rainfall shower and timber vanity. The internal laundry enjoys handy outdoor access via the bathroom, and incorporates an adjoining separate toilet. With stunning ash-toned timber flooring throughout, split-system heating and cooling, and skylights flooding the kitchen space with natural light, this home’s beauty is matched only by its well-designed functionality.
Stroll into Seddon Village for fabulous boutique shopping, and a wide selection of cafes and eateries providing the perfect cosmopolitan lifestyle. With Yarraville Square just a three-minute drive away offering the convenience of Coles, a bottle shop, chemist, bakery, deli and more, and schools, parks and the vibrant hub of Footscray all within easy reach, you’ll have everything you need close by. Neighbouring Yarraville offers a fantastic village vibe, with the iconic Sun Theatre, great shopping and loads of chic cafes, restaurants and wine bars ready to welcome you and give you a great night out. Just 8km from the CBD, trips to the city for work or leisure will be an easy drive or a quick train ride from West Footscray and Seddon station, just 750m from your front door.
Perfect for first homebuyers, downsizers and investors alike, this home is a fantastic opportunity to purchase a stunning, move-right-in home in a prime inner-city location.
Features include:
• Charming period façade
• Two bedrooms, master with built-in robe
• Elegant living room with split-system and feature fireplace
• Spacious open-plan kitchen/dining space
• Stunning chef’s kitchen with integrated dishwasher
• Hotel-style bathroom with walk-in rainfall shower
• Internal laundry with adjoining separate toilet
• Private courtyard with rear laneway access
• Walk to Seddon Village cafes and shops
• Walk to West Footscray and Seddon train stations
• Close to Yarraville and Footscray
• 8km from the CBD
