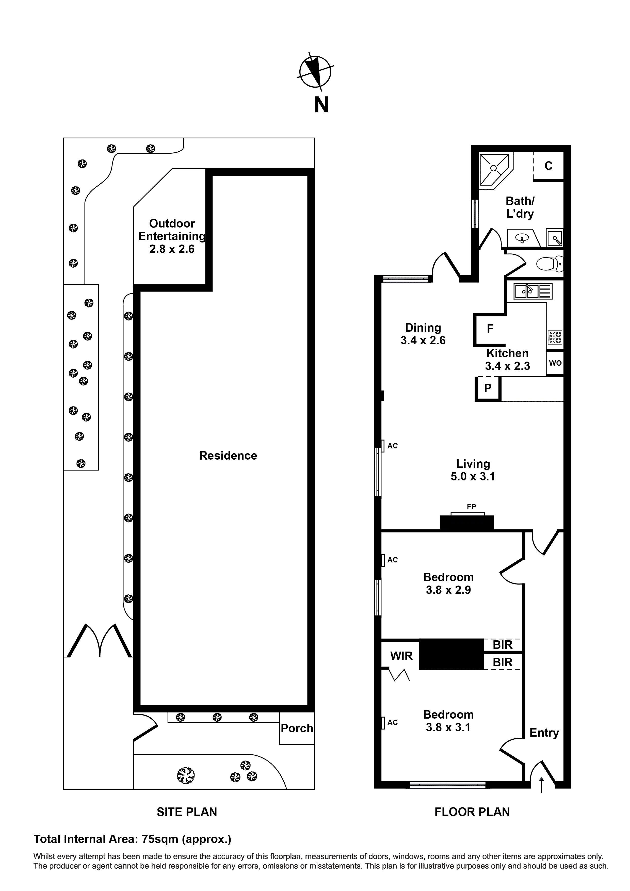
This charming property offers the perfect blend of comfort and convenience in one of Melbourne's most sought-after neighbourhoods. Featuring two generously sized bedrooms each equipped with built-in robes and split systems for your comfort all year round.
Step into the heart of the home, where a spacious living area seamlessly flows to a meals...
This charming property offers the perfect blend of comfort and convenience in one of Melbourne's most sought-after neighbourhoods. Featuring two generously sized bedrooms each equipped with built-in robes and split systems for your comfort all year round.
Step into the heart of the home, where a spacious living area seamlessly flows to a meals and kitchen area, creating an inviting space for relaxation and entertainment. The adjoining undercover decked entertaining area opens to a private rear courtyard, perfect for alfresco dining or simply unwinding after a long day.
Convenience is key with a central bathroom featuring laundry facilities, as well as a storage area in the roof for all your organisational needs. A side drive ensures hassle-free parking for your vehicle.
Nestled in an unbeatable location, just a leisurely 5-minute stroll from Seddon Village's vibrant cafes, restaurants, and the iconic Mona Castle. Commuting is a breeze with Seddon station within walking distance, offering easy access to Melbourne CBD. Families will love the proximity to Footscray High School and Footscray City Primary School.
With the Melbourne CBD just 10km’s away and local parks within easy reach, this home offers the perfect balance of urban convenience and suburban tranquillity.