Land in the location of your dreams with exactly the right amount of land, almost exactly half-way between Sandringham’s village life and Hampton St’s latte living. Surrounded by the charming period homes of Gipsy Village, this perfectly proportioned approx. 429sqm property provides the opportunity of a lifetime to build a low-maintenance beachside...
Land in the location of your dreams with exactly the right amount of land, almost exactly half-way between Sandringham’s village life and Hampton St’s latte living. Surrounded by the charming period homes of Gipsy Village, this perfectly proportioned approx. 429sqm property provides the opportunity of a lifetime to build a low-maintenance beachside lifestyle.
Easily manageable, exceptionally affordable and individually titled as a full single-fronted block from the area’s original subdivision, this rare offering represents an almost unique opportunity to realise the dream of building to down-size or start-up on a compact private street front site. Consider the beauty of this beachside streetscape. Take a look at clever in-fill housing in this, and surrounding, streets. And bring your own unique vision to this uniquely appealing site.
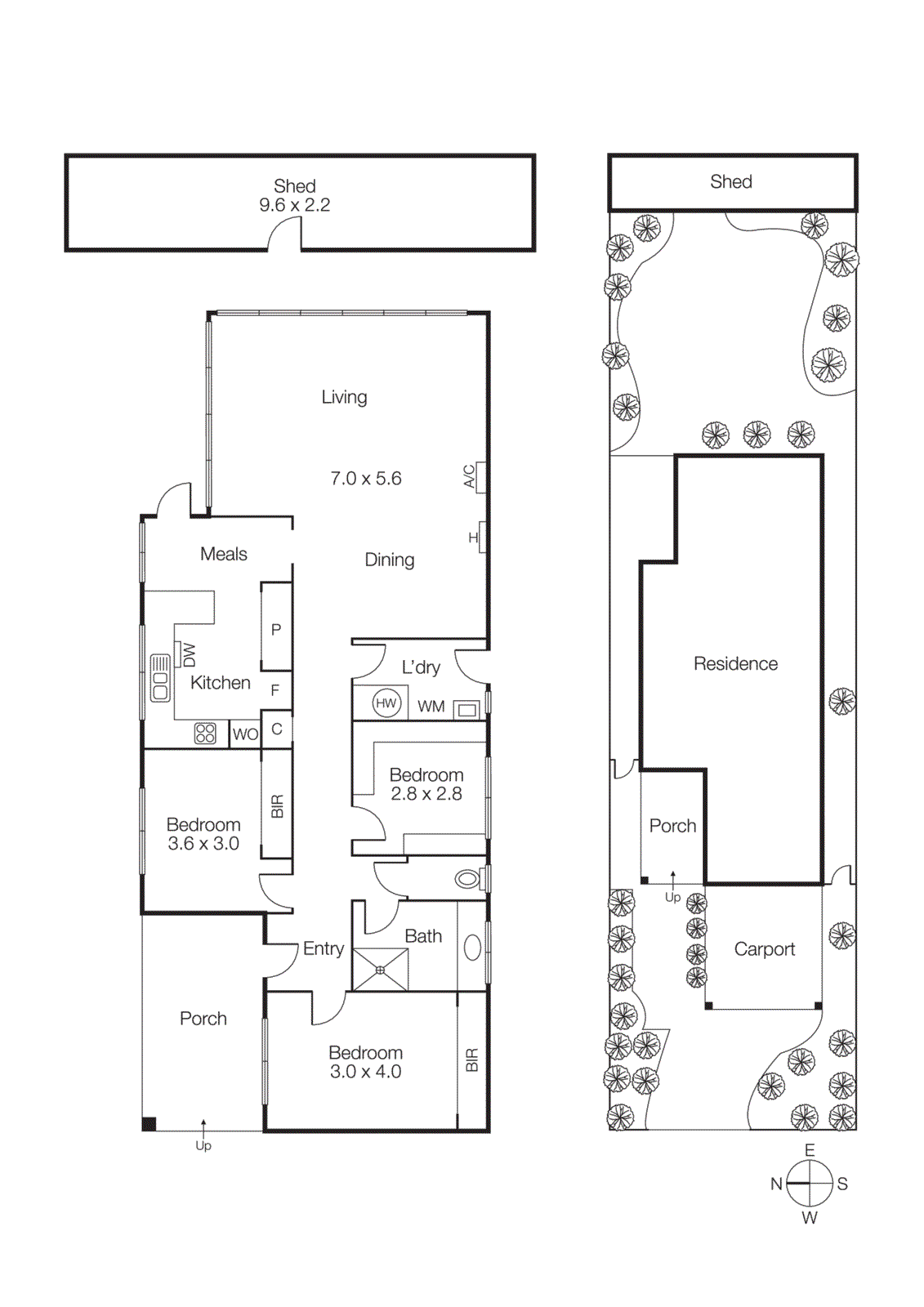
There’s even plenty of time to settle in and get to know the site and let the existing three bedroom home pay its way for a little longer. Wonderfully liveable or rentable with a modern laminate kitchen with meals, neat bathroom with separate WC and third bedroom fitted to double as home-office, this centrally heated and reverse-cycle air-conditioned home with double carport will let you relax in-situ until it’s time to break ground.
In the heart of the Gipsy Village precinct, just two blocks from Trevor Barker Oval and the beachfront walking tracks, this well-proportioned property is well-positioned for Bayside life with the station and village cafes and shopping within 200m, the rejuvenated primary school within a walk and the Brighton schools and the CBD just down the line.
For more information about this unique Gipsy Village re-build opportunity contact Scott Hamilton or Brydie Hamilton at Buxton Sandringham.