Behind an elegant façade, this impeccably presented family residence has been beautifully designed to provide maximum comfort, luxury and liveability across two light filled levels. Surrounded by...
Behind an elegant façade, this impeccably presented family residence has been beautifully designed to provide maximum comfort, luxury and liveability across two light filled levels.
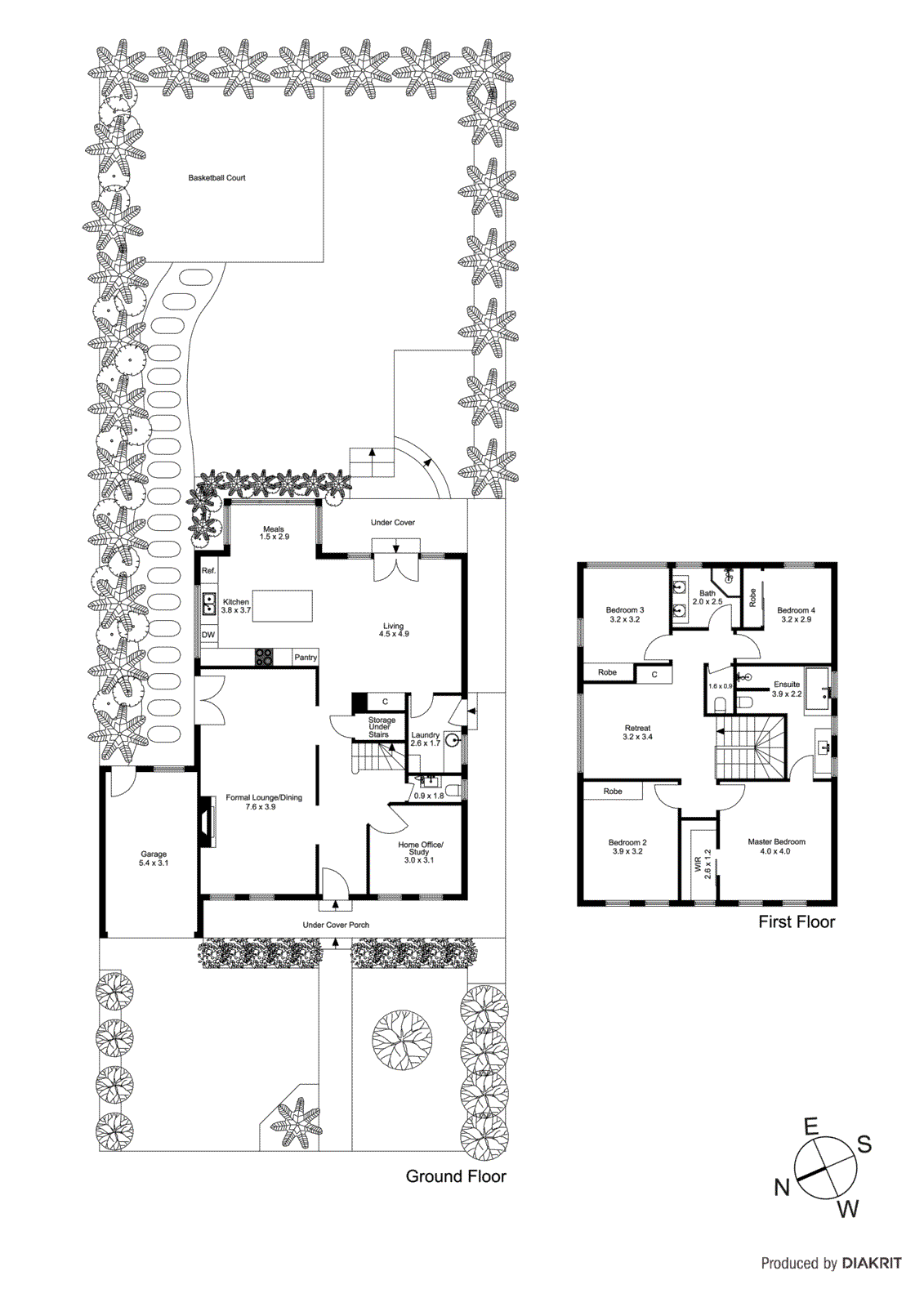
Surrounded by glorious landscaped gardens, the home’s exterior surroundings are simply breathtaking, while also being effortlessly practical meeting the needs of a modern family. A basketball court offers hours of enjoyment; while the glorious rear garden sanctuary is a place of quiet seclusion.
An inspired palette of finishes from wide engineered oak floors to bespoke joinery and the dramatic use of marble effect stone throughout tie the home together, while expanses of glazing emphasize the openness and connection with the beautiful outdoors.
A welcoming entrance hall flows past the study/home office and formal lounge and dining room with open fireplace, both enjoying leafy aspects.
At the rear, a glass-wrapped living, meals and kitchen zone opens through French doors to the deep rear garden.
Here privacy is assured with tall established trees providing a glorious backdrop for relaxed living and entertaining on the elevated alfresco deck, deep lawn, and basketball court.
Overlooking the relaxed family zone, the stunning kitchen is beautifully appointed with stone benchtops, breakfast island, Asko gas cooktop and oven, Miele dishwasher, and plentiful cabinetry.
Upstairs, a light-filled retreat precedes four bedrooms including the lavish master suite with walk-in wardrobe and indulgent ensuite featuring freestanding bath & under floor heating; while three additional bedrooms with built-in robes, share the luxe twin-vanity bathroom and separate WC.
This outstanding home includes security alarm, powder room, fitted laundry, plantation shutters, zoned ducted heating, evaporative cooling upstairs, ample storage, automated sprinkler system, garage and off-street parking.
Set in this peaceful family-friendly pocket close to Black Rock Primary School and with zoning for Beaumaris Secondary College and Mentone Girls’ Secondary College, this compelling haven is walking distance to local shops and cafes, parklands, bus services and the beach . Also ideal for golf lovers Royal Melbourne Golf Course is situated just around the corner with the bonus of a resident membership being available.
For more information about this double-storey haven contact Romana Altman or Louise Herterich at Buxton Sandringham.
