Big, bold and brilliantly addressed, this is the College Zone design of a lifetime.
Just completed by one the Zone’s most respected builders, Majestique Homes, this state-of-the-art four bedroom and study, 3.5 bathroom, dual zone home is a rare find – offering brand new prestige family living with the rare combination of a blue-chip Ormond...
Big, bold and brilliantly addressed, this is the College Zone design of a lifetime.
Just completed by one the Zone’s most respected builders, Majestique Homes, this state-of-the-art four bedroom and study, 3.5 bathroom, dual zone home is a rare find – offering brand new prestige family living with the rare combination of a blue-chip Ormond address, zoning for both McKinnon Secondary College and Ormond Primary School….and the bonus of a sparkling northerly rear with a city view!
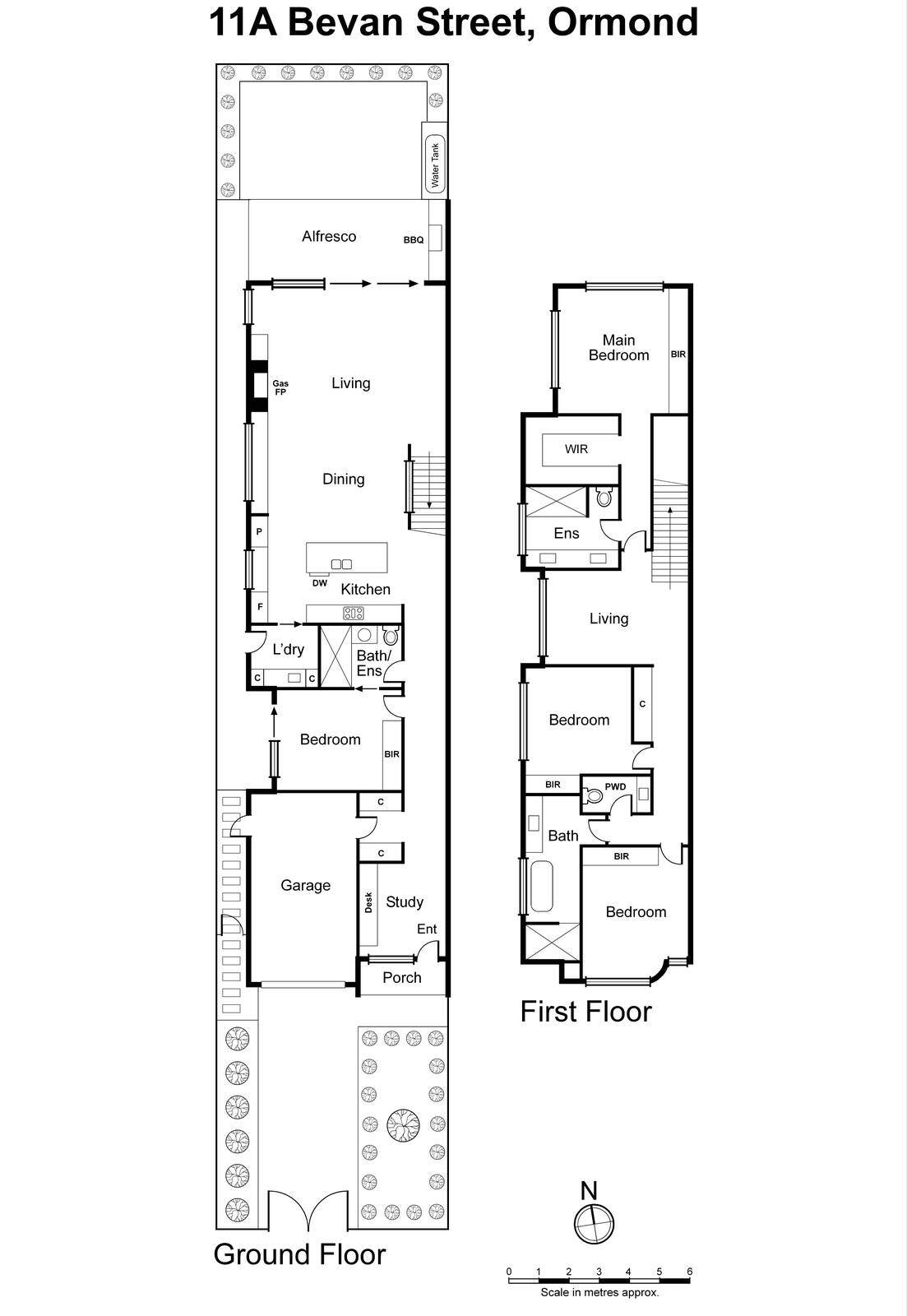
Designed for family harmony with suites and living zones upstairs and down, this exceptional home features, ground-floor living flowing to a pergola-shaded al fresco area, a large first-floor lounge and a city-view principal suite with dual-vanity ensuite and bespoke-fitted walk-in robe.
A showcase of this leading builder’s signature quality and design with a super-sized Smeg appliance kitchen reflecting living in a mirrored-splashback and luxe bathrooms wrapped in limestone-style porcelain tiles, the home brings together highest quality fittings and finishes with luxe stone benchtops (including a Bianco Vena marble dining bench and workstation, and Zimbabwe granite for the BBQ area), rich Oak floors and pebbled wool carpets, and luxe window-furnishings (including block-out blinds and airy sheer curtains facing the street).
Styled with exceptional attention to detail with Bottega Oak and 2-Pack cabinetry, frameless bathroom screening, and commercial-grade double-glazing, the home stars bold architectural detail including a cleverly-framed floating stairway, tall doors rising to lofty up to 3m ceilings, and a widespread 1.2m gas log-fireplace.
Climate controlled over two zones with Dahua video-intercom entry enhanced by CCTV and an alarm, this showpiece city-view home is set in a mature drip-watered landscape with auto-gated parking and garage (with storage). Positioned on the Brighton East border with the North Rd bus around the corner and the tram and train, this outstanding home is just a half a dozen blocks to Ormond primary, minutes to the College and equally close to Kilvington Grammar.