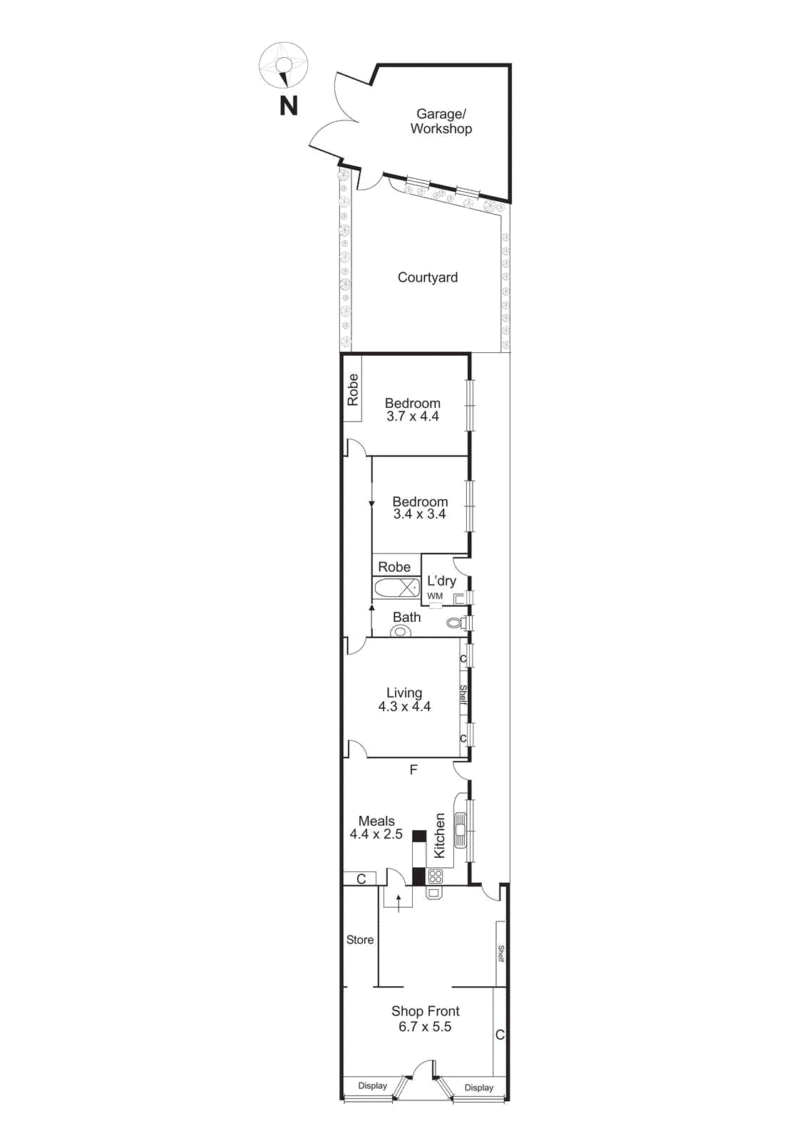
This prime shop and residence has been held by just one family for 66 years…now it’s ready to take part in the transformation of this developing retail strip location. At the heart of a high-visibility, ready-to-boom shopping strip, this charming shopfront is offered in time-capsule condition with a separate-entry two bedroom residence, rear...
This prime shop and residence has been held by just one family for 66 years…now it’s ready to take part in the transformation of this developing retail strip location. At the heart of a high-visibility, ready-to-boom shopping strip, this charming shopfront is offered in time-capsule condition with a separate-entry two bedroom residence, rear laneway access to parking on approx 221sqm land, and a commercial C1Z location in the McKinnon College Zone.
A rare retro find with a curvaceous mid-Century kitchen and a vintage bathroom with Art Deco curves, this spacious two bedroom residence will reward a respectful renovation with a two-in-one investment or a live-&-work life! Upgrade for a flexible residential and retail investment. Keep this solid shopfront to build a business around living where you work. Alternatively, develop the value in this McKinnon College and McKinnon College Primary School zoned property (Subject to Council Approval) …or landbank this flexibly zoned site until it’s time develop on a grander scale.
Whatever the plan, this high-visibility retail and residential premises provides a multiple options and multiplicity of benefits – with the bus to the beach and Monash University at the door, stations within walking distance and blue-chip College Zone real-estate as neighbours!