A vision of architectural excellence and luxe contemporary appeal, this renovated, 3-bedroom, 2-bathroom family home blends a relaxed coastal aesthetic with the finest of features just metres from the foreshore.
Designed to capture stunning native gardens and treetop views from every light-filled dimension, this timeless mid-century design...
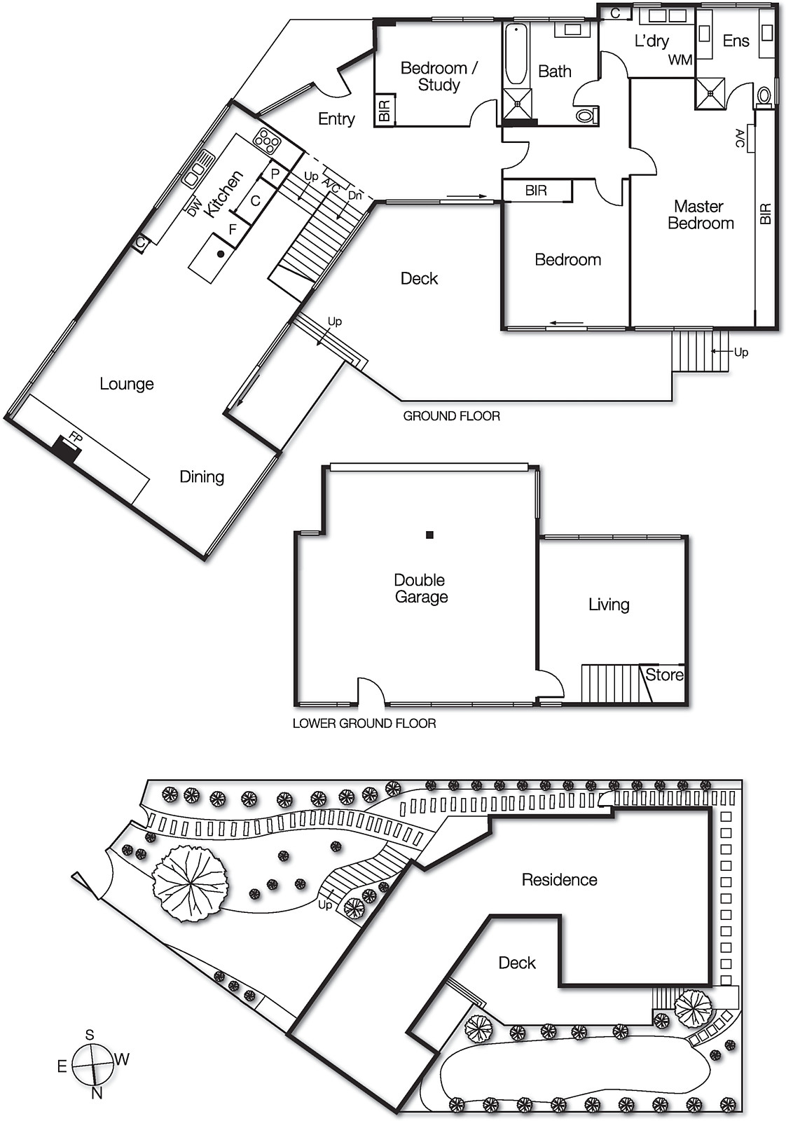
A vision of architectural excellence and luxe contemporary appeal, this renovated, 3-bedroom, 2-bathroom family home blends a relaxed coastal aesthetic with the finest of features just metres from the foreshore.
Designed to capture stunning native gardens and treetop views from every light-filled dimension, this timeless mid-century design places living on both levels with gas-fire warmed lounge-dining and a media room wired for theatre, an entry level sleeping zone in its own private wing (including a dual vanity ensuite for the master bedroom) and a state of the art Neff appliance kitchen comprising glossy glass splashback and a self-cleaning oven.
Living even extends outdoors... with al fresco entertaining on a broad wrap-around deck and perfect privacy in a quiet garden retreat.
Comprehensively appointed with Caesar stone benchtops, solid timber floors and 2-pack joinery and optioned up with new split system air-conditioners, this centrally heated and alarmed home provides built in robes to all bedrooms, streamlined storage, cable connection throughout and a double lock up garage beyond auto gated entry.
Set high on the rise of this prized street, find the beach within steps, MacDonald Reserve within a stroll, local shopping strips within minutes and close proximity to zone 1 and 2 public transport plus major road access for an easy City commute. For more information, contact Romana Altman or Rebecca Beacall.
Listing Website