Downsize without compromise and secure an up-scale beachside address. Offering house-like space with blue-chip graces, this single-level three bedroom, two bathroom home is up-sized with a family-wise dual zone, dual courtyard design starring elegant formal lounge-dining facing a manicured private front yard, a relaxed casual area opening to...
Downsize without compromise and secure an up-scale beachside address. Offering house-like space with blue-chip graces, this single-level three bedroom, two bathroom home is up-sized with a family-wise dual zone, dual courtyard design starring elegant formal lounge-dining facing a manicured private front yard, a relaxed casual area opening to covered entertaining in a carefree courtyard …and an equally carefree inactive Owners’ Corporation!
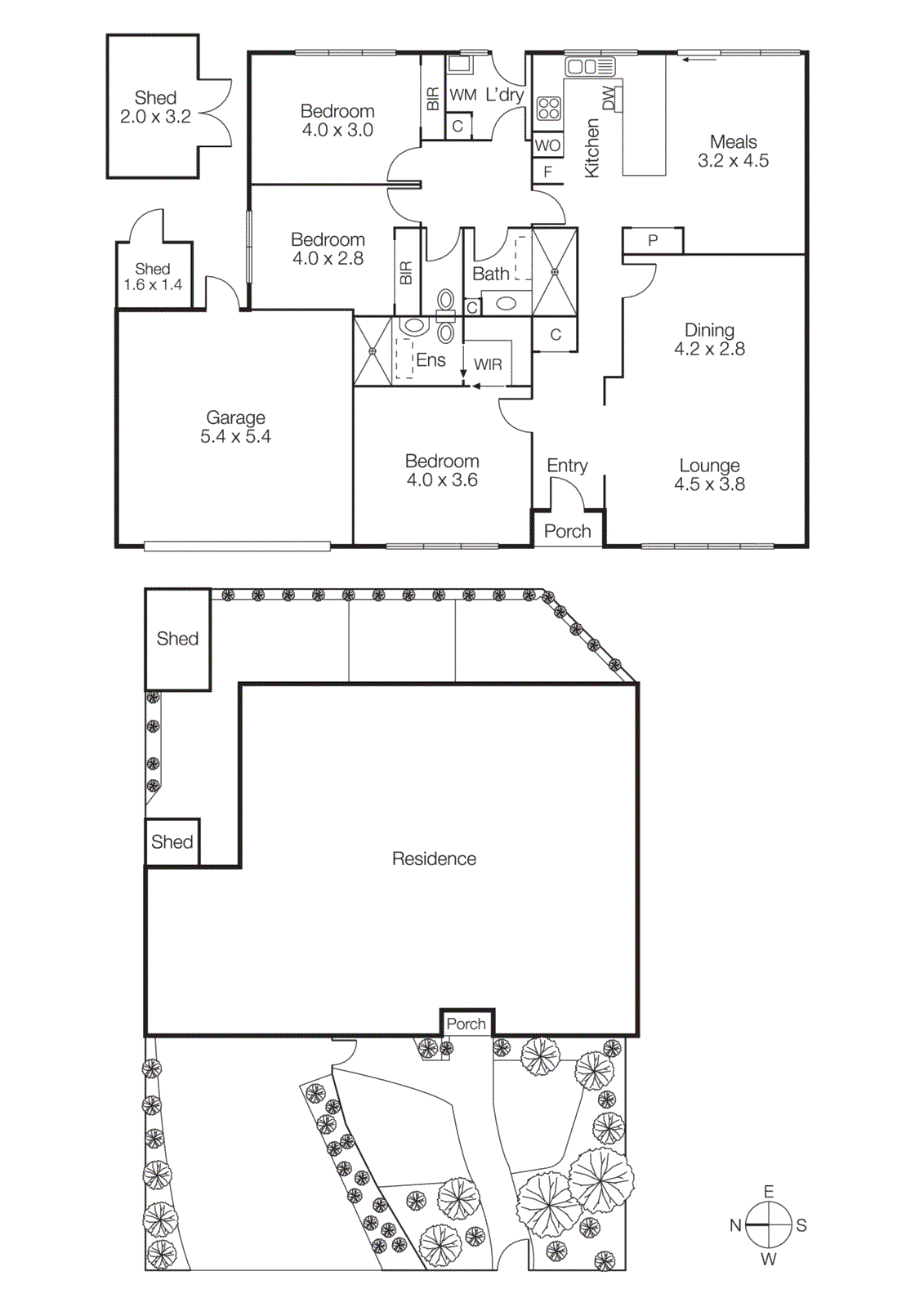
Timeless by design with up-to-the minute additions including new dual AEG ovens for the sleek stone benchtop kitchen with a Bosch dishwasher, this impressive front home features light-filled skylit bathrooms including a sizeable ensuite, quality carpets and generous storage including walk-through and built-in robes…all beneath lofty 2.7m ceilings! Climate-comtrolled by ducted reverse-cycle air-conditioning, there are two secure sheds (one powered to double as a workshop), and a double auto-garage plus driveway parking for 2 further cars.
Best of all, there’s this low-traffic high-amenity location; just steps to the tennis courts at Banksia Reserve, virtually around the corner to Keys St shopping, the bay with the BMYS a few steps away and bus-routes, a minute to the Concourse and in-Zone for both in-demand Beaumaris Primary School and Secondary College. For more information about this superior single-level home contact Peter Hickey or Stefan Delyster.