Wonderfully extended for pure enjoyment, this stylish 4-bedroom plus study, 2.5-bathroom home is brimming with family flair in a prized Bayside pocket. Nestled on Sandringham’s doorstep this safe and...
Wonderfully extended for pure enjoyment, this stylish 4-bedroom plus study, 2.5-bathroom home is brimming with family flair in a prized Bayside pocket. Nestled on Sandringham’s doorstep this safe and friendly Highett neighbourhood is sought for its close proximity to schools, parkland, shops, public transport and the beach.
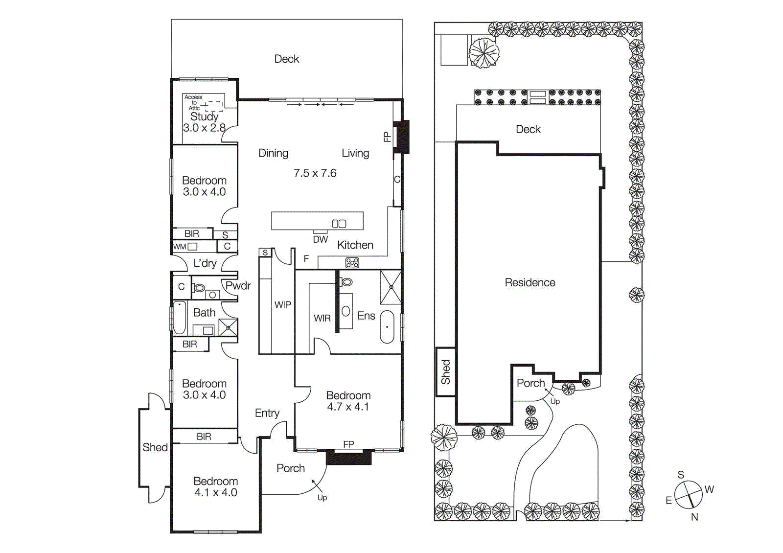
A true entertainer graced with relaxed, timeless interiors all on one level bringing the family together with ease and elegance. Gorgeous Deco details complement a fresh, contemporary feel throughout the home with an expansive indoor-outdoor domain the star. Open plan living flows through glass sliders to a full-length, al fresco deck (strip heating) with ample room to BBQ, dine and even play table tennis in a blissfully private, landscaped rear.
Kitchens sell houses and this one will seal the deal with its dreamy, light-filled dimensions radiating warmth, style and functionality. Sweeping expanses of Volakas marble top an entertainer’s island with plenty of seating, while an Italian freestanding cooker (combi steam oven and combi gas/induction/teppanyaki cooktop), integrated dishwasher and huge butler’s pantry enhance the appeal. An abundance of classy Shaker profile cabinets and smooth marble extends to a wall of custom joinery in the fire-warmed lounge.
Superbly accommodating with robed bedrooms and luxe bathrooms including a sizable master suite peacefully fronting the home. Flaunting decorative ceilings, a walk-in robe and designer en suite, this beautiful space is the perfect retreat. Read in the afternoon sun, sit by the gas log fire or soak in a stunning free-standing bath and let the stresses of the day wash away. A flexible fourth bedroom doubles as a games room, while a dedicated home office is ideally positioned to keep an eye on the kids.
Secured behind high fencing in a leafy, garden setting with auto-gated parking and play, this rendered home also features a large laundry, guest powder room, ducted heating/cooling, in-roof attic storage, custom cabinetry, stone finishes, Plantation shutters, high ceilings and engineered Oak flooring. In walking distance to Sandringham Primary and Secondary schools, the local doctor and the park, half-way between Sandringham and Highett stations and village shops.
For more information about this family-sized, Bayside prize please contact Leanne Potter at Buxton Brighton on 0414 344 144.
