A triumphant showcase of modern luxury, this multi-level marvel takes family living to new heights. This bespoke warehouse conversion has skilfully transformed a former bakery into a style-focused,...
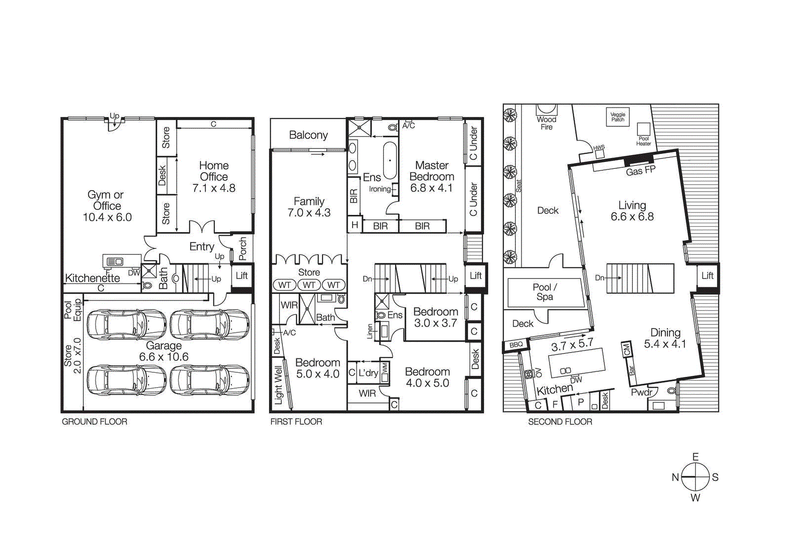
A triumphant showcase of modern luxury, this multi-level marvel takes family living to new heights. This bespoke warehouse conversion has skilfully transformed a former bakery into a style-focused, gallery-inspired space for work, rest and play. Spanning 3 vast floors with potential for a fourth, among the many highlights are rooftop pool and entertaining, luxe master retreat, ground floor commercial area, 4-car garage and volumes of storage.
Dramatic yet intimate, the cascading floor plan is accessed by an internal lift or ascend the grand, central staircase to truly experience the home’s immense sense of scale. Secured beyond soaring, laser-cut corten steel screens, the property unfolds like the pages of an interiors magazine. A finalist in Bayside Council’s ‘Built Environment Award’, cutting-edge design is elevated by the rich patina of original hardwood flooring and reclaimed brick feature walls.
Sitting atop the residence, towering walls of glass illuminate the primary living zone with northern light, while also facilitating flawless indoor-outdoor integration. Cosy up to fireplaces inside and out or cool-off in a heated plunge pool/spa. Spectacular dining complete with a cocktail bar is serviced by an as-new kitchen featuring Smeg cooking and Miele coffee machine. Stretches of smooth stone adorn a 3.5m waterfall island alongside a Butler’s pantry, private study area and guest powder room.
The second level hosts four zoned bedrooms including a sublime master domain flaunting endless storage and an exquisite combined dressing room and en suite. Pressed walls and Calacatta marble shower tiles enhance this tranquil retreat featuring a dual vanity and freestanding bath. Three further en suite bedrooms create exceptional accommodation for children and guests alike, while an expansive media lounge and terrace balcony provide even more space and entertainment options.
Zoned for commercial use (C1Z) the street-level boasts two extraordinary spaces ideal for a home business, rental option or extra living. Currently presented as an executive office and home gymnasium, the possibilities are boundless with a separate entry, kitchenette, powder room and integrated storage. Turn–up the appeal with a sought after lifestyle address steps to Martin Street village with its restaurants, bars, shops and train station at your door, close to fine schools and the bay.
Family focused yet oozing effortless cool with bold, bespoke finishes artfully conceived in an entirely livable context. Climate controlled (ducted heating, reverse cycle air conditioning units & ceiling fans) with high-end extras such as pendant lighting, automatic blinds, ducted vacuum, abundant storage and even a concealed ironing station in the main en suite. Outside lush yet low maintenance landscaping, kitchen herb garden, built-in BBQ, tank water and new gas pool/spa heating. Security features include an alarm system, video intercom and direct access automatic 4-car garage.
For more information about this architectural showpiece please contact Buxton Brighton by calling Ben Vieth on 0404 084 793 or Tamara Penno on 0409 532 606.
