Standing tall on the streetfront in grand and gracious style, it's clear this home is something special ...but nothing will prepare you for this state-of-the-art style! Expertly refitted beyond a soaring entry lobby and grand formal lounge, this up to five bedroom plus study, two-plus bathroom home is now the ultimate family entertainer with four...
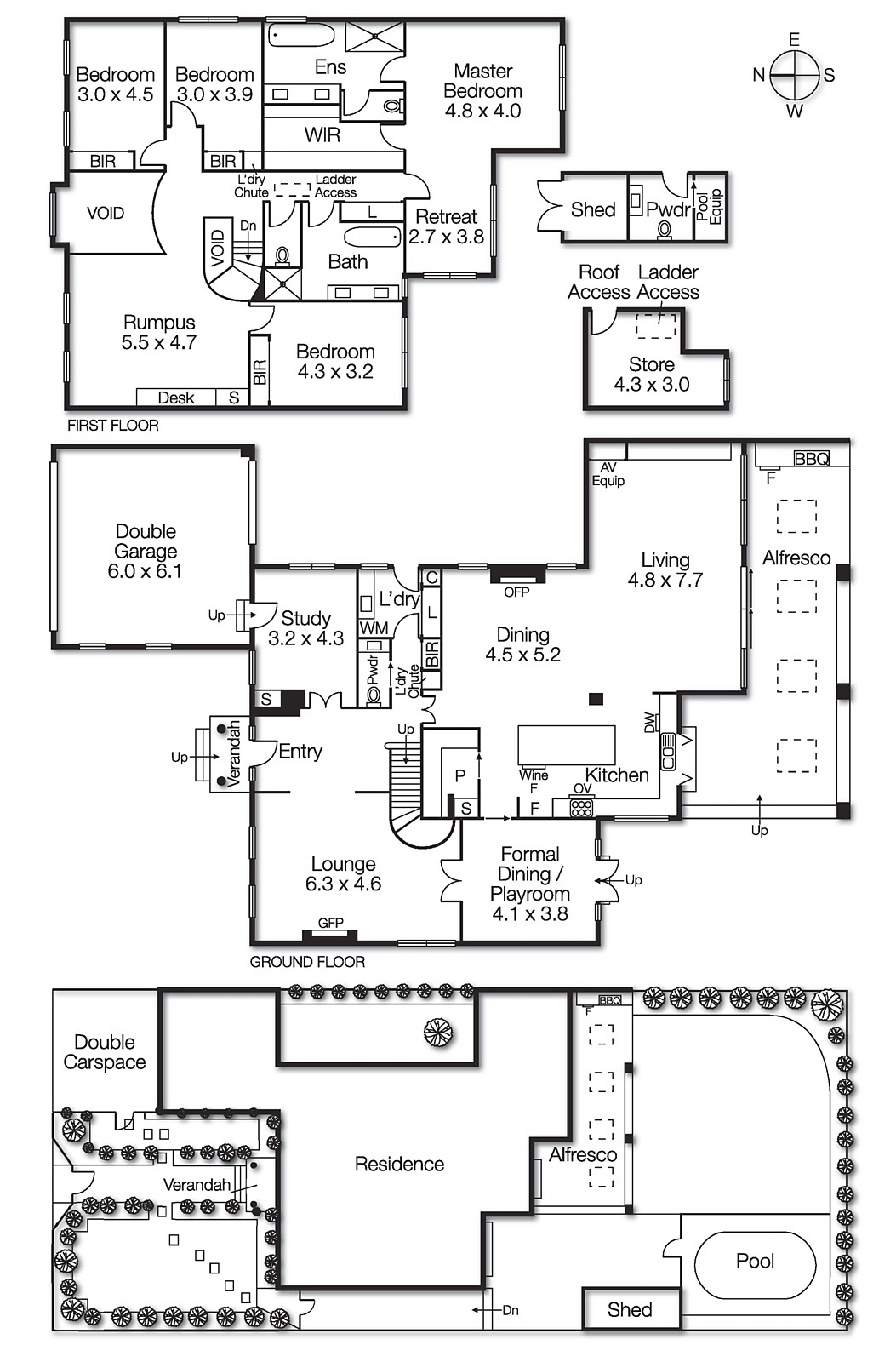
Standing tall on the streetfront in grand and gracious style, it's clear this home is something special ...but nothing will prepare you for this state-of-the-art style! Expertly refitted beyond a soaring entry lobby and grand formal lounge, this up to five bedroom plus study, two-plus bathroom home is now the ultimate family entertainer with four living zones including vast living-dining opening to a poolside al fresco area (with BBQ/outdoor kitchen), a first-floor kids' lounge adjacent the entry void mezzanine and a bonus garden-access playroom or media lounge - ready to double as a big fifth bedroom.
Finished in cutting-edge style with a bi-fold servery and window-splashbacks for the sleek Smeg kitchen, designer dual-vanity bathrooms (each with a freestanding bath) and a luxe master domain with dressing room and retreat, this exceptional home features CaesarStone benchtops (even for the butler's pantry and floating media bench) and hand-cut European Oak floors.
With every prestige extra (including ducted heating, air-conditioning and vacuum, gas and open fireplaces, video intercom and alarm), even the home's gardens showcase a blend of classic and cutting-edge style with a large double auto-garage in rose-filled formal gardens and poolside entertaining centred on a glass-fenced pool with adjacent powder-room. High on the hill, the heart of the Sandbelt Golf Courses, a walk to the bay and village, this is the state-of-the-art surprise package! For more information about this state-of-the-art entertainer contact Romana Altman or Rebecca Beacall.
Listing Website