On the ground floor in magnificent heritage listed Ardoch Village, this 1920’s period apartment has been stylishly renovated to blend its handsome “Arts and Crafts” character with elegant contemporary function in one of the South East’s most exceptional settings. Stretching out over more than 7 acres of manicured gardens with a village green,...
On the ground floor in magnificent heritage listed Ardoch Village, this 1920’s period apartment has been stylishly renovated to blend its handsome “Arts and Crafts” character with elegant contemporary function in one of the South East’s most exceptional settings. Stretching out over more than 7 acres of manicured gardens with a village green, heated pool, exercise room and sauna - right in heart of Melbourne’s most popular inner-city location - Ardoch Village homes are justifiably sought after with openings here hotly contested, ever more so those that have been renovated.
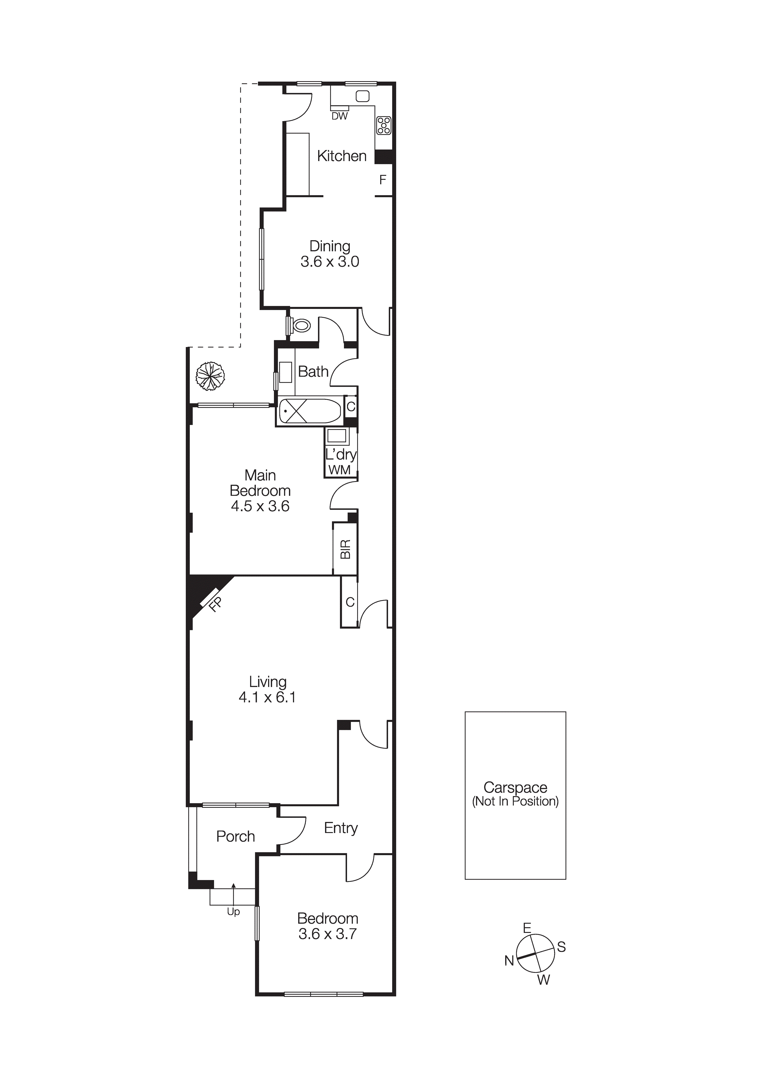
Boasting a perfect sense of independence with its own private porch entry and rear access to undercover parking via Pilley Street, this apartment’s spacious proportions are defined by high ceilings, textured plaster walls and rich individual charm in an entry hall, generous living/dining room with OFP and two oversized bedrooms. At the rear, a dining domain is accompanied by respectfully renovated spaces that include a superb stone finished bathroom and smart gourmet kitchen whose quality is revealed in stone benchtops, undermount sink, Bosch appliances, integrated dish drawer dishwasher and excellent storage.
Includes polished hardwood floors, hydronic heating, plantation shutters, under cover parking. Walk to Chapel Street, trams, trains and Alma Park with easy access to Carlisle Street, High Street Armadale, Hawksburn Village and Malvern Central.