Please, there is no body corporate for this residence.
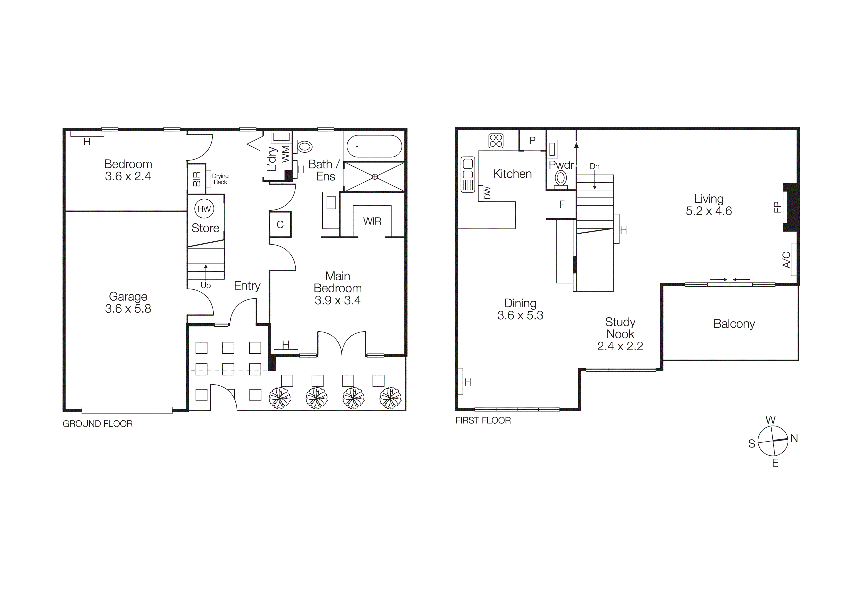
A super smart, architect design that offers space, style and sensational natural light is simply perfect for busy contemporary living in this two-bedroom townhouse just a short stroll from Carlisle Street. Set behind its own street frontage with an internally accessed remote garage, two...
Please, there is no body corporate for this residence.
A super smart, architect design that offers space, style and sensational natural light is simply perfect for busy contemporary living in this two-bedroom townhouse just a short stroll from Carlisle Street. Set behind its own street frontage with an internally accessed remote garage, two ground-floor bedrooms offer spacious retreats whilst upstairs, a generous whole floor of living expands out to include multiple areas for relaxing, recharging or easy entertaining. Behind a high private fence with secure entry, a leafy courtyard introduces the two bedrooms, one with BIRs, the luxuriously proportioned main featuring courtyard access, excellent walk-in robe/storage and ensuite access to a designer bathroom complete with floating vanity, soaker tub and double head shower. Above, floor-to-ceiling windows flood living areas with abundant natural light and leafy rooftop views including a superbly sophisticated lounge with OFP and dining terrace, zoned study nook and an impressive dining domain with breakfast bar/storage aside a custom, stone-finished kitchen with Bosch appliances and dishdrawer dishwasher. Further highlights include first-floor powder room, European laundry, split heating/cooling, high living room ceilings, polished timber floors, secure entry, alarm and oversized remote garage with room for storage. Stroll down to locally renowned Blencowes Kitchen at one end of the street, or to Alma Park at the other, just a little further to Carlisle Street shopping, dining and bars, trams, trains or even Chapel Street Windsor. From this quiet, low-traffic pocket enjoy easy access to a host of other hotspots such as High Street Armadale, Hawksburn Village, the St Kilda foreshore and more. A fabulous inner-city lifestyle awaits!