LEASED!
SOUGHT AFTER & SUN FILLED WITH LIFESTYLE APPEAL - 6 MONTH LEASE FURNISHED
6 MONTH LEASE FURNISHED
*You MUST register for an inspection and we ask that you also confirm your attendance. AN AGENT WILL NOT BE PRESENT IF YOU DO NOT REGISTER and CONFIRM. Your consideration and co-operation is appreciated.
Elevate your lifestyle with...
LEASED!
SOUGHT AFTER & SUN FILLED WITH LIFESTYLE APPEAL - 6 MONTH LEASE FURNISHED
6 MONTH LEASE FURNISHED
*You MUST register for an inspection and we ask that you also confirm your attendance. AN AGENT WILL NOT BE PRESENT IF YOU DO NOT REGISTER and CONFIRM. Your consideration and co-operation is appreciated.
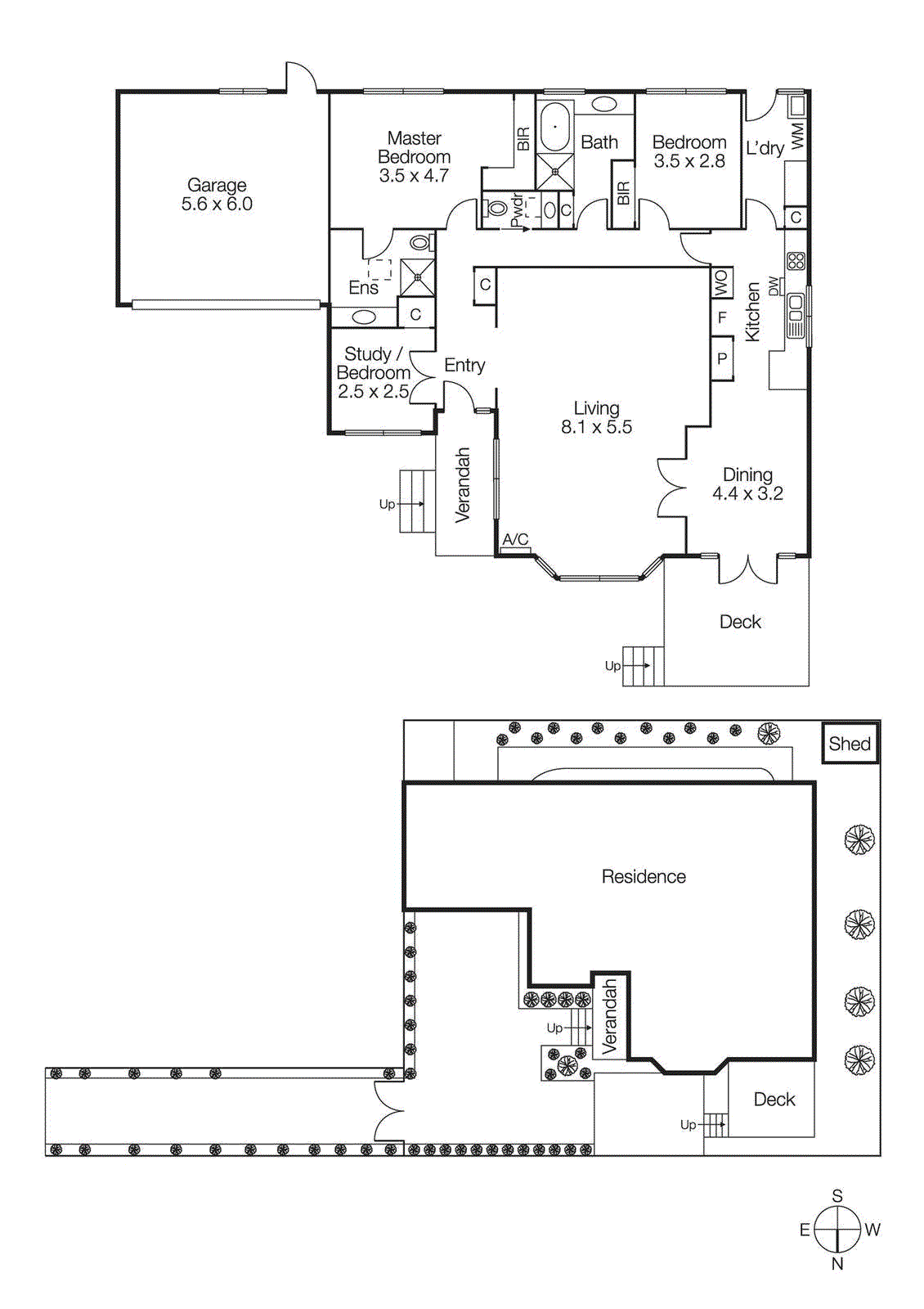
Elevate your lifestyle with sought after, single level ease in a premium Brighton location tucked between Dendy Village, Church Street and the bay. Beautifully presented to show off a sun filled, spacious layout oriented to capture northerly light and surrounded by 4-sides of garden with little maintenance required.
Securely set to the rear of only two, attractive clinker brick homes, offering complete peace and privacy beyond a long drive. Picture windows illuminate generous living with a stylish bay window, the perfect spot to create a sunny sitting or dining area. A classically appointed, timber kitchen and spacious meals area open to north-facing decking designed to entertain or just soak up the sun.
The master bedroom features a dressing area with built in robes as well as a sky-lit en suite, while the second bedroom (built in robes) accesses the main bathroom and a separate powder room. A versatile third bedroom or ideal nursery is currently presented as a light filled home office adding to the broad appeal.
There’s also plenty of driveway parking. Centrally heated with reverse cycle air conditioning in the main living zone. Enjoy pedestrian access to Dendy Village’s gourmet food stores, cafés and shops with Church Street, Bay Street, parks, schools, the bus or train and Brighton’s iconic Bathing Box beach near by.