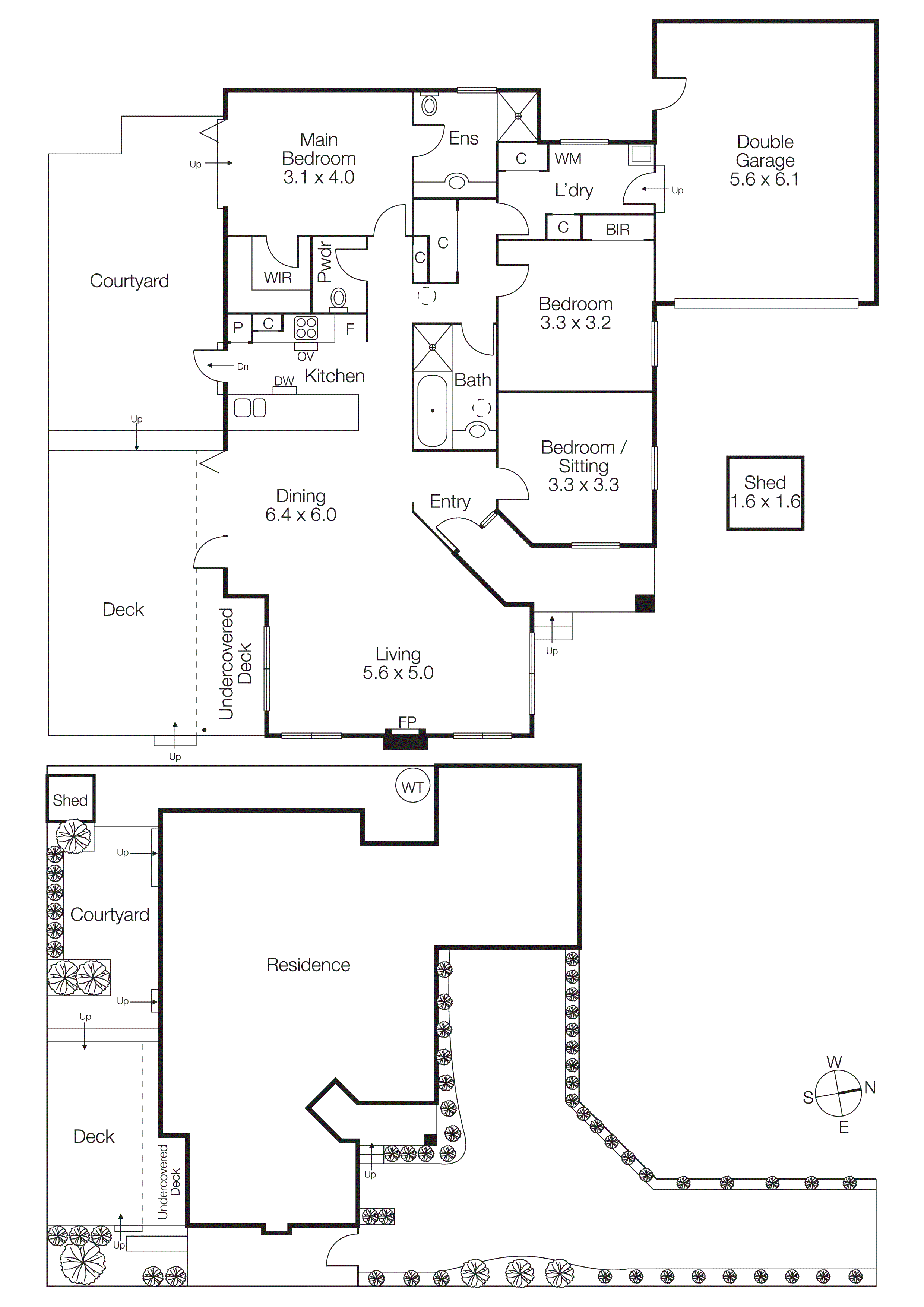
Grand space, good sun and a great address, this is vintage Grange! Oriented to maximise north sun on a private approx 400sqm site, this tasteful three bedroom, two bathroom brick home stands alone and showcases the finer things in life with expansive living bathed in all-day sun, dining flowing seamlessly through a wall of bi-folds to an...
Grand space, good sun and a great address, this is vintage Grange! Oriented to maximise north sun on a private approx 400sqm site, this tasteful three bedroom, two bathroom brick home stands alone and showcases the finer things in life with expansive living bathed in all-day sun, dining flowing seamlessly through a wall of bi-folds to an entertainer’s deck, and well-zoned bedrooms including a gorgeous garden master-suite with walk-in robe, a skylit ensuite and more bi-folds to the lush courtyard.
Styled with elite Smeg and Bosch appliances (including an induction cooktop) for the state-of-the-art kitchen, this impeccably styled home features deluxe bathrooms, and designer detail including stone benchtops, glossy hardwood floors and airy plantation-shutters. Showcasing an expert eye for detail with ceiling fans for every room, a glorious gasfire for the living zone, and a clever mudroom-style laundry as the link to the big double auto-garage, this centrally heated and air-conditioned home is set in landscaped surrounds with room for parking (and play) on the long private drive, a vertical garden as a backdrop to a fresco entertaining, and a bamboo-hedged breakfast-terrace beyond the master bi-folds.
An excellent opportunity (without body corporate fees) to enjoy the best of Bayside life with Sandringham’s village, station, schools and beaches within walking distance, this well-addressed property has parks and cafes all around, world-class Sandbelt golf courses in easy reach, and Southland’s retail therapy within minutes.
For more information about this superior single-level home contact Peter Hickey or Stefan Delyster at Buxton Sandringham.