Look to the future with vast views, fabulous frontage and lovely land! Highset and widespread opposite the Long Hollow Reserve, this approx 644sqm/6987sqft property comes with a very comfortable three bedroom, 1.5 bathroom home, a broad approx 26.5m/87ft frontage ...and wide appeal for new home builders, renovators and families alike!
See the...
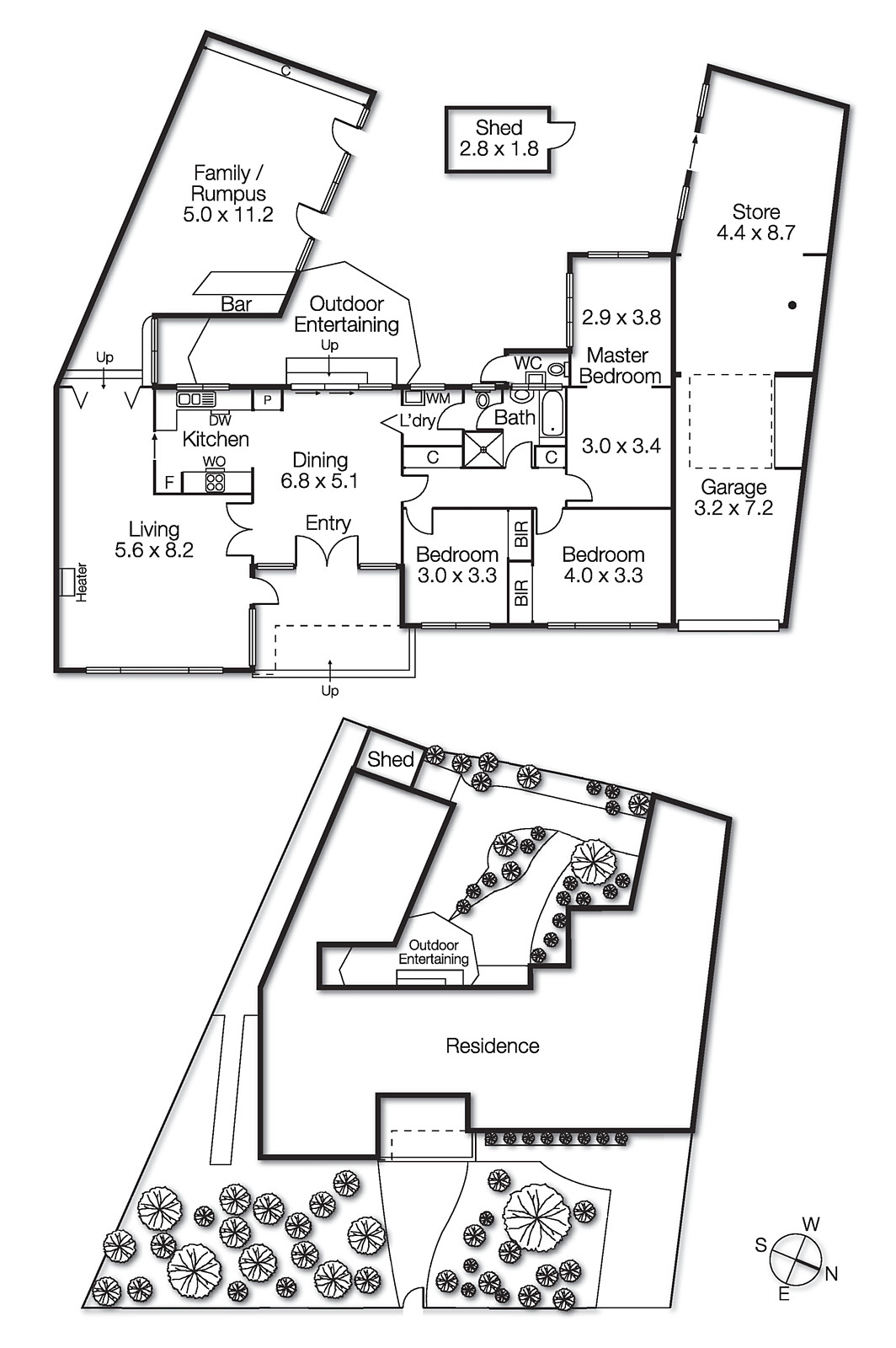
Look to the future with vast views, fabulous frontage and lovely land! Highset and widespread opposite the Long Hollow Reserve, this approx 644sqm/6987sqft property comes with a very comfortable three bedroom, 1.5 bathroom home, a broad approx 26.5m/87ft frontage ...and wide appeal for new home builders, renovators and families alike!
See the value in the existing dual zone brick home and relax with window-walled bushland-outlook living, a north-facing parquetry-floored family room and a quiet bedroom wing starring master with retreat/study. Updated with a prestige stainless-steel appliance kitchen, polished porcelain tiled and timber floors, this spacious brick home is ideal as is with the comfort of ducted cooling, gas-heating and a deep three-car garage.
Secure comfortable family living or a substantial base for further renovation and extension at this prime beachside address,...or take a new view with a high-impact home in Beaumaris' fastest moving, lowest traffic locale. Adjacent the forthcoming Secondary College and sports ovals and just around the corner from the Community Centre, tennis club and Concourse, this one has broad potential. For more information about this wise Reserve-view property contact Romana Altman at Buxton Sandringham on 0414 804 270
Listing Website