The superior space and quality of this contemporary town residence creates the ideal environment for an easy-care lifestyle in one of Brighton East’s most desirable locations. The home enjoys close proximity to Dendy Park, Brighton Golf Course, Haileybury and St Leonard’s as well as Hampton Street, the beachfront and the many other conveniences...
The superior space and quality of this contemporary town residence creates the ideal environment for an easy-care lifestyle in one of Brighton East’s most desirable locations. The home enjoys close proximity to Dendy Park, Brighton Golf Course, Haileybury and St Leonard’s as well as Hampton Street, the beachfront and the many other conveniences sought by Bayside families.
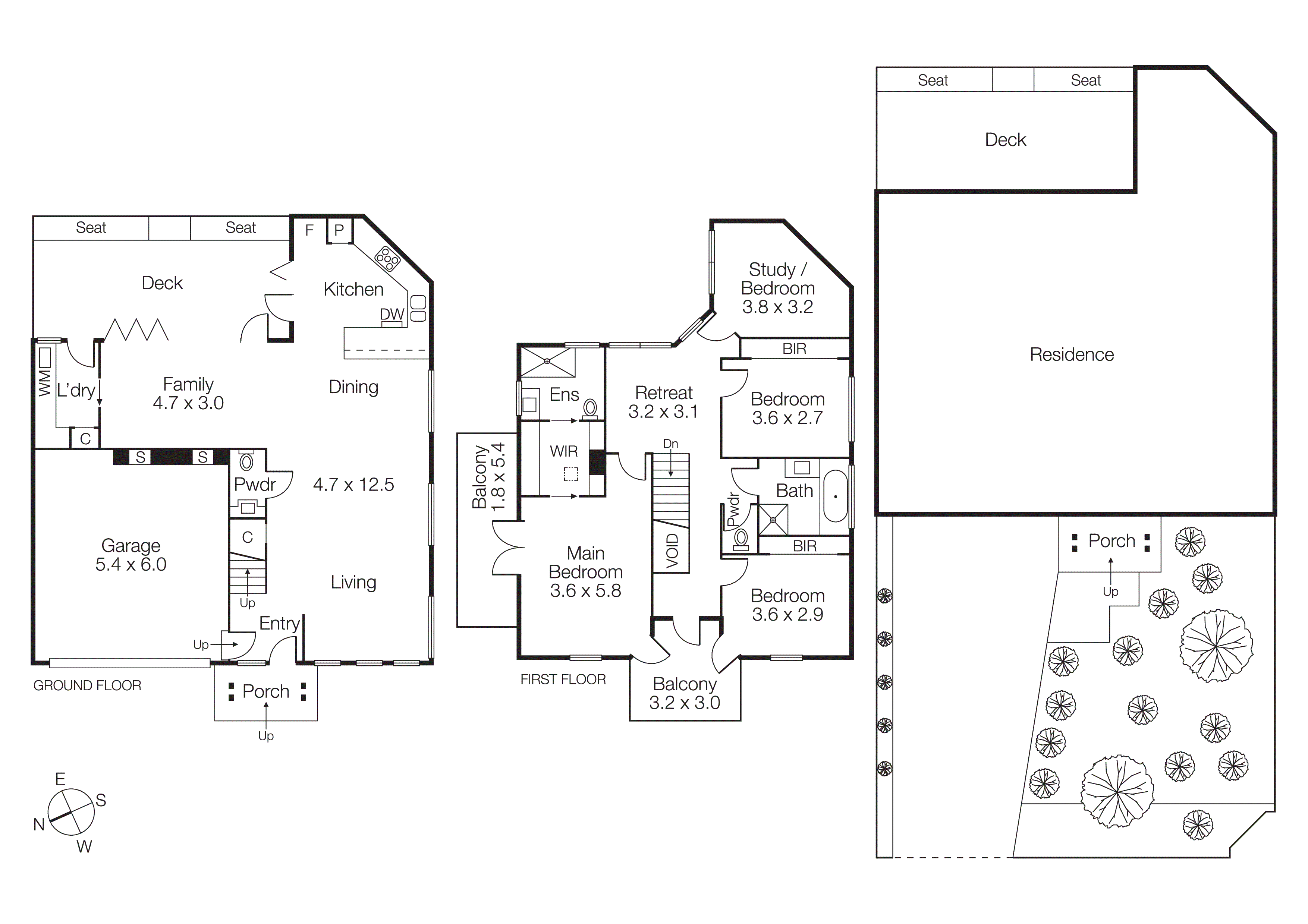
Lush, low maintenance landscaping welcomes you home to a design-driven layout where the ground level is all about living and entertaining in style. Modern wide-board flooring sweeps through this open-plan domain with a huge family lounge leading to the dining zone. Two banks of bi-folds can be thrown open to create a vast, integrated indoor-outdoor area perfect for gathering in the summer sun. The stone kitchen further enhances entertaining ease with its quality appliances, and ample bench and cupboard space.
A guest powder room and stone finished laundry complete the practicalities downstairs. The upper level provides generous accommodation with four bedrooms, two bathrooms and a further living zone or kids’ retreat. The main bedroom suite offers a choice of two terraces for capturing stunning sunset views, and it includes a fitted walk-in robe and fully-tiled en suite. The fourth bedroom provides the option of a light-filled study, depending on your needs.
Seasonal comfort is ensured with ducted heating and cooling, while an automatic double garage, with additional driveway parking, opens directly into the home for increased privacy and security. This property presents a wonderful family opportunity in the Dendy Park precinct.
For more information about this modern family retreat please contact Leanne Potter at Buxton Brighton on 0414 344 144.