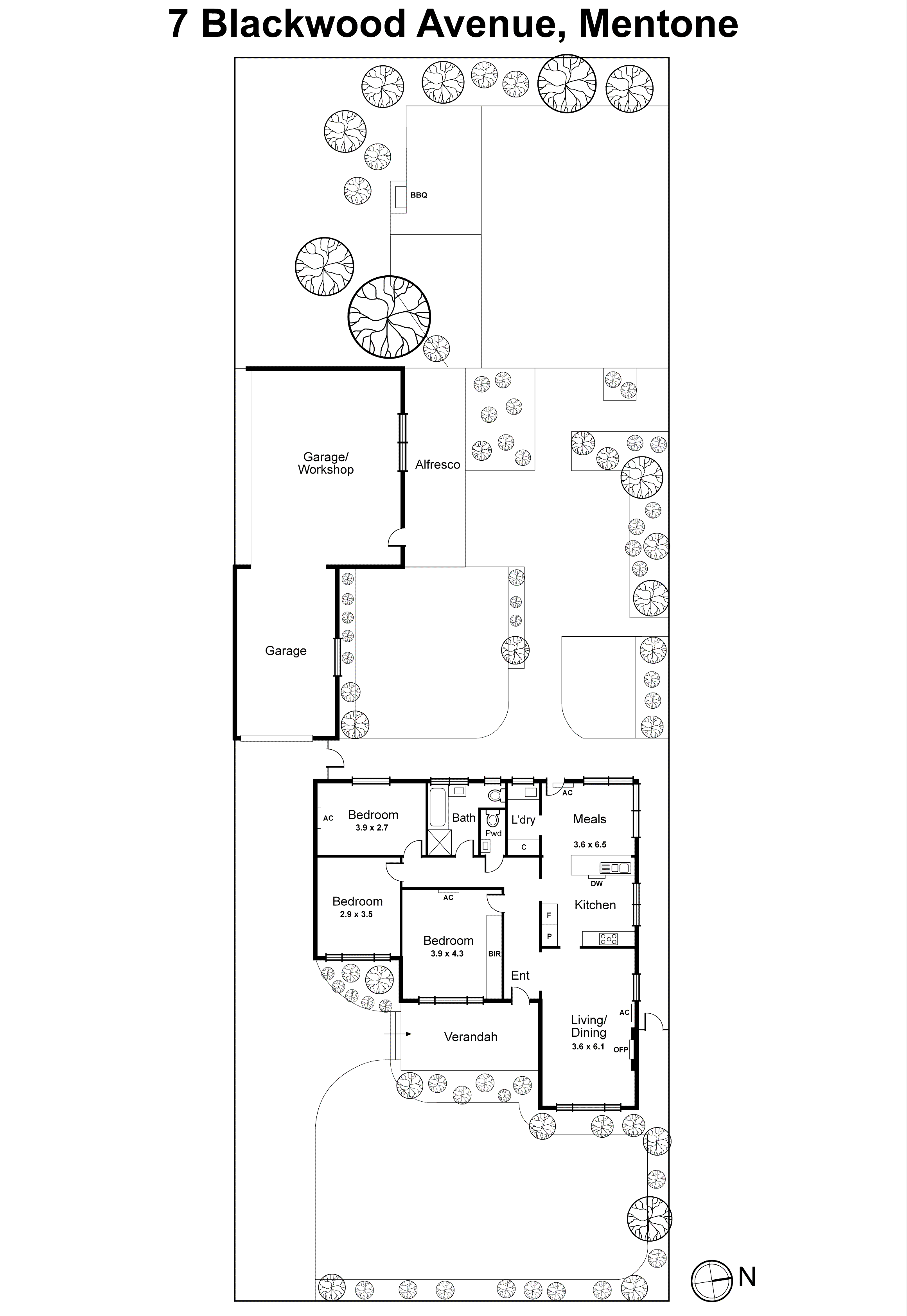
Style, space and late-period grace come together in the family home of your future! An impressive sight on a broad (approx 16.7m) and beautiful (approx 787sqm) site, this stylishly renovated three bedroom, 1.5 bathroom home unfolds beyond a decorative brick façade and deep covered patio to offer a grand living stepping into a sunny kitchen-casual...
Style, space and late-period grace come together in the family home of your future! An impressive sight on a broad (approx 16.7m) and beautiful (approx 787sqm) site, this stylishly renovated three bedroom, 1.5 bathroom home unfolds beyond a decorative brick façade and deep covered patio to offer a grand living stepping into a sunny kitchen-casual area, a quiet bedroom wing...and scope to extend further when the time is right.
Graced with great proportions and lofty deep corniced ceilings as a backdrop to solid hardwood floors, pretty picture-rails and an impressive tapestry-brick fireplace, this vintage beauty is styled for today with a sleek white prestige appliance kitchen, a designer bathroom (with separate shower and full bath), and a similarly stylish powder-room with second WC. Featuring a freshly fitted laundry and glossy marble-look benchtops (waterfall-edge for the kitchen), this centrally-heated home offers today’s family comfort with reverse-cycle air-conditioning for almost every room, and tall mirrored-robes for most bedrooms.
Step up to life on a big, beautiful family block and find plentiful parking including a secure garage (extending to mancave proportions with room for gym, workshop and more) and a lush sun-filled kids’ paradise backyard (with vegie boxes, designer chook-shed, broad lawns), there’s more room to extend out here...or, perhaps, start afresh with a brand new home or two (Subject to Council Approval).
Just two blocks to Mentone Park Primary School and around the corner from both Racecourse Reserve and Southern Rd Reserve, this broadly appealing home has Thrift Park shopping within a dash, all the Mentone school.