WHAT Nestled in the architecturally designed ‘Galerie’ complex, this brand-new two-bedroom apartment offers bespoke contemporary living at its absolute finest. Enjoying an elevated position with...
WHAT
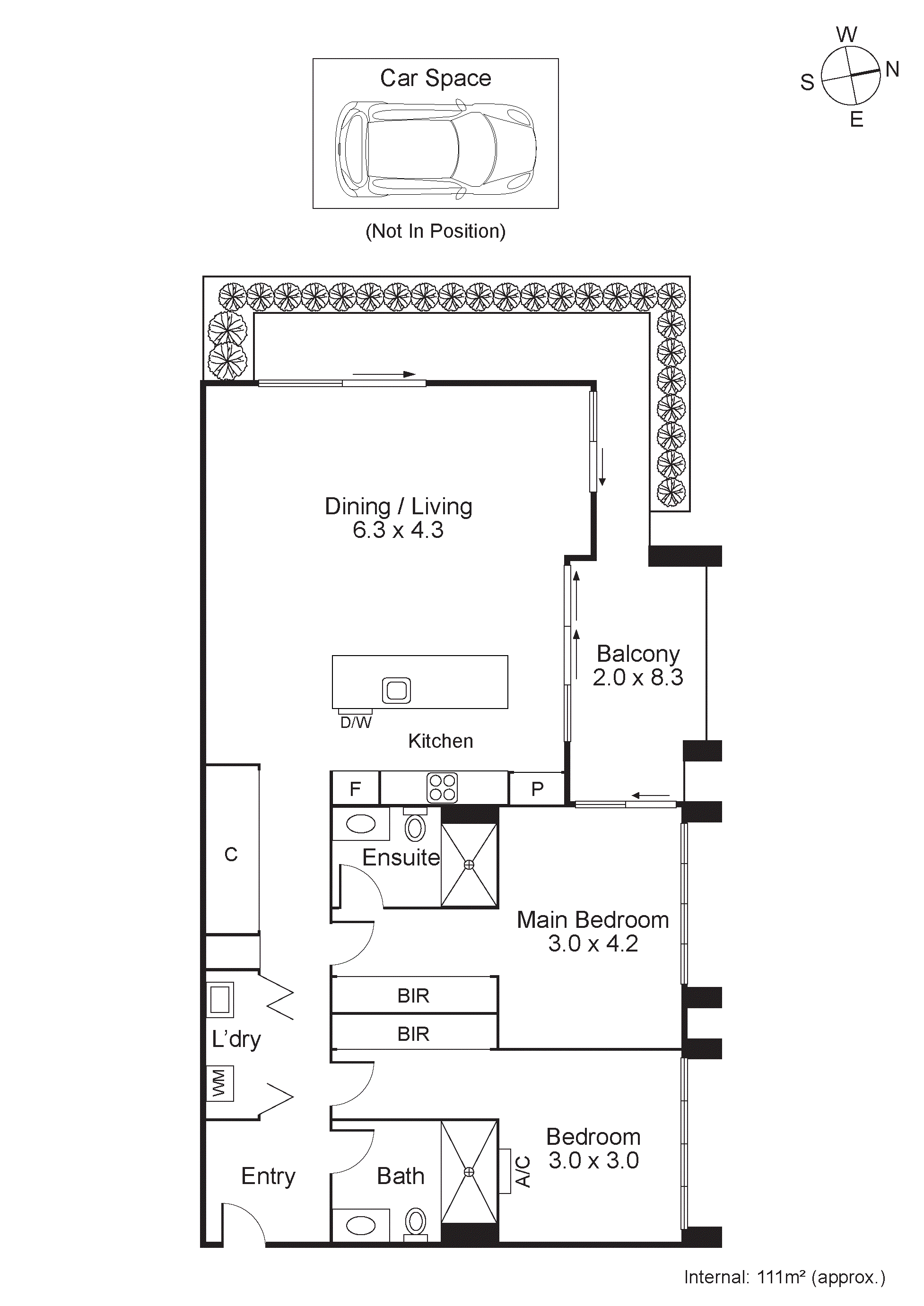
Nestled in the architecturally designed ‘Galerie’ complex, this brand-new two-bedroom apartment offers bespoke contemporary living at its absolute finest. Enjoying an elevated position with views stretching to the city skyline, this luxury residence features a meticulously crafted layout defined by a strong sense of artistry to suit seamless modern-day living. Inside reveals a dynamic open plan central hub with an impressive attention to detail. Boasting two spacious, robed bedrooms and two elegant bathrooms, every aspect of the home enjoys custom joinery to match throughout the home.
• High-end kitchen features a hand-craft natural stone island, built-in European appliances and integrated cabinetry
• North-facing wrap-around balcony with unrivalled city views
• An elevated lifestyle with exceptional entertaining
WHY
Your own private Galerie. ‘Galerie’ blends its architectural design with artistic composition of the Glen Iris neighbourhood, making its presence felt from the outset. An illuminated gallery-style lobby with a bespoke Chaumet Chandelier, textured walls, and world-class artworks provide a memorable grand entrance. Curated to perfection, the northern aspect allows light to flow into the sun-bathed kitchen and living spaces catering to all your entertaining needs. Premium inclusions: ducted heating and cooling, European laundry, timber flooring, plush carpeted bedrooms, one car space, and plentiful internal storage.
• Brought to life visionary developers LDS Property in conjunction with architect Ewert Leaf, and landscape architect John Patrick
• Artistic luxury and quality composition
• The perfect organic canvas to shape your own fine art
WHERE
When residents return home from the bustling bars or restaurants along High Street, Glenferrie Road, or Malvern Road, they are greeted by a gentle glow that illuminates their home after sunset. A life like no other with all Glen Iris has to offer on your doorstep. Leave your car at home and enjoy the perks of easy CBD access via premium public transport including local trams or walk to Glen Iris Station or Toronga Station.
• Close to Malvern public gardens, Nettleton Park, and the Gardiner’s Creek Trail
• Minutes to Monash Caulfield, De La Salle, and St Mary’s College
• Retail therapy along Burke Road and Malvern Central
