WHAT Harmonising innovative design and dynamic architecture, the luxury ‘Galerie’ complex offers an unrivalled lifestyle experience with an artistic flair, in the cosmopolitan heart of Glen Iris....
WHAT
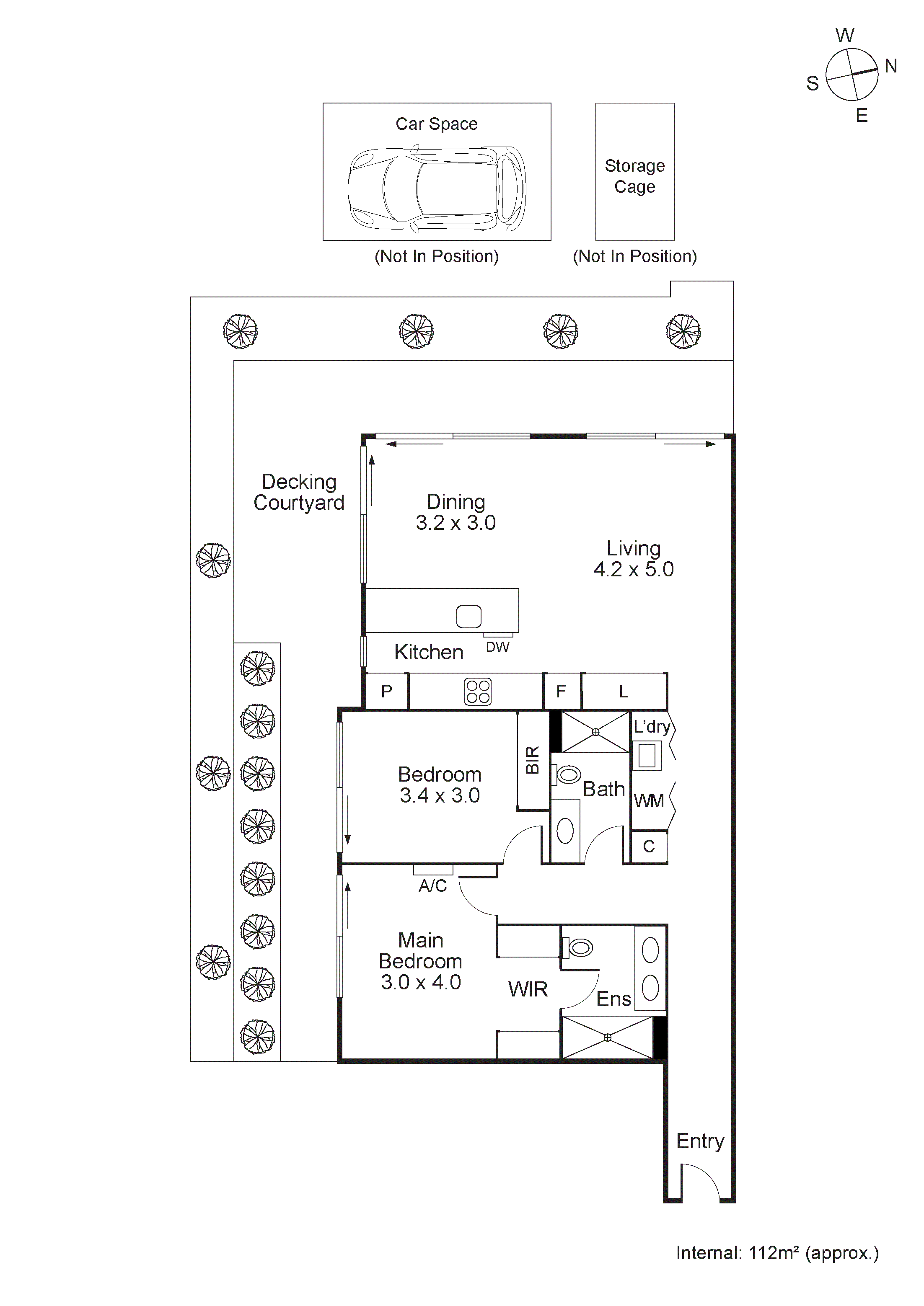
Harmonising innovative design and dynamic architecture, the luxury ‘Galerie’ complex offers an unrivalled lifestyle experience with an artistic flair, in the cosmopolitan heart of Glen Iris. Tailored for a serene indoor/outdoor lifestyle, this exquisite ground floor apartment shines with style and sophistication, from the bespoke natural stone kitchen to the luxuriously appointed bedrooms and bathrooms. Discover a design of open spaces that lead to a private courtyard providing direct integration to the surrounding landscape through large sliding doors. Generous in size, the main bedroom flaunts walk-in robe storage and a luxe ensuite, while the second bedroom features a built-in robe and easy access to the sparkling family bathroom.
• Luxury 2-bed, 2-bath ground floor apartment
• Private courtyard through large sliding doors
• Generous living zone alongside sleek designer kitchen
WHY
Meticulously designed by visionary developers raising the calibre of contemporary living, the residence flaunts sleek design and bespoke joinery culminating in refined architectural mastery. Exuding elegance, the engineered oak floors elevate the living zone, while the kitchen impresses with a natural stone island bench, custom detailing, tiled splashbacks and quality appliances including integrated dishwasher. Both bedrooms open out to the rear deck and landscaped courtyard and feature plush carpet underfoot, while heating and cooling provide year-round ambience. Additional inclusions of a Euro laundry and single car space increase the appeal, while the gallery-style lobby at the entrance of the complex is adorned with a Chaumet chandelier and curated private collection of world-class artworks, further enhancing the luxurious allure.
• Immaculate kitchen featuring hand-crafted natural stone island bench
• Heating & cooling, Euro laundry, car space & storage cage
• Illuminated gallery-style lobby with Chaumet Chandelier exclusive artworks
WHERE
Wonderfully positioned for an active, modern lifestyle, with cafés and eateries along Malvern Road just a pleasant walk, boutique shopping along High Street and within Malvern Central minutes away, trams outside your door, plus Glen Iris station and the Monash Freeway nearby, and parkland, the Gardiners Creek Trail and local schools including Sacre Coeur and Korowa Anglican Girls’ School all within easy reach.
• Pleasant walk Malvern Rd cafés & eateries
• Close to High St shops & Malvern Central
• Trams at your door & trains a short stroll away
