Entered off Arnott Street, the leafy location and stunning Art Deco style of this solid residence form a brilliant combination.
From the moment you walk in, pristine features such as beautifully crafted ceiling work, original hardwood floorboards and subtle natural light complement an immaculate renovation.
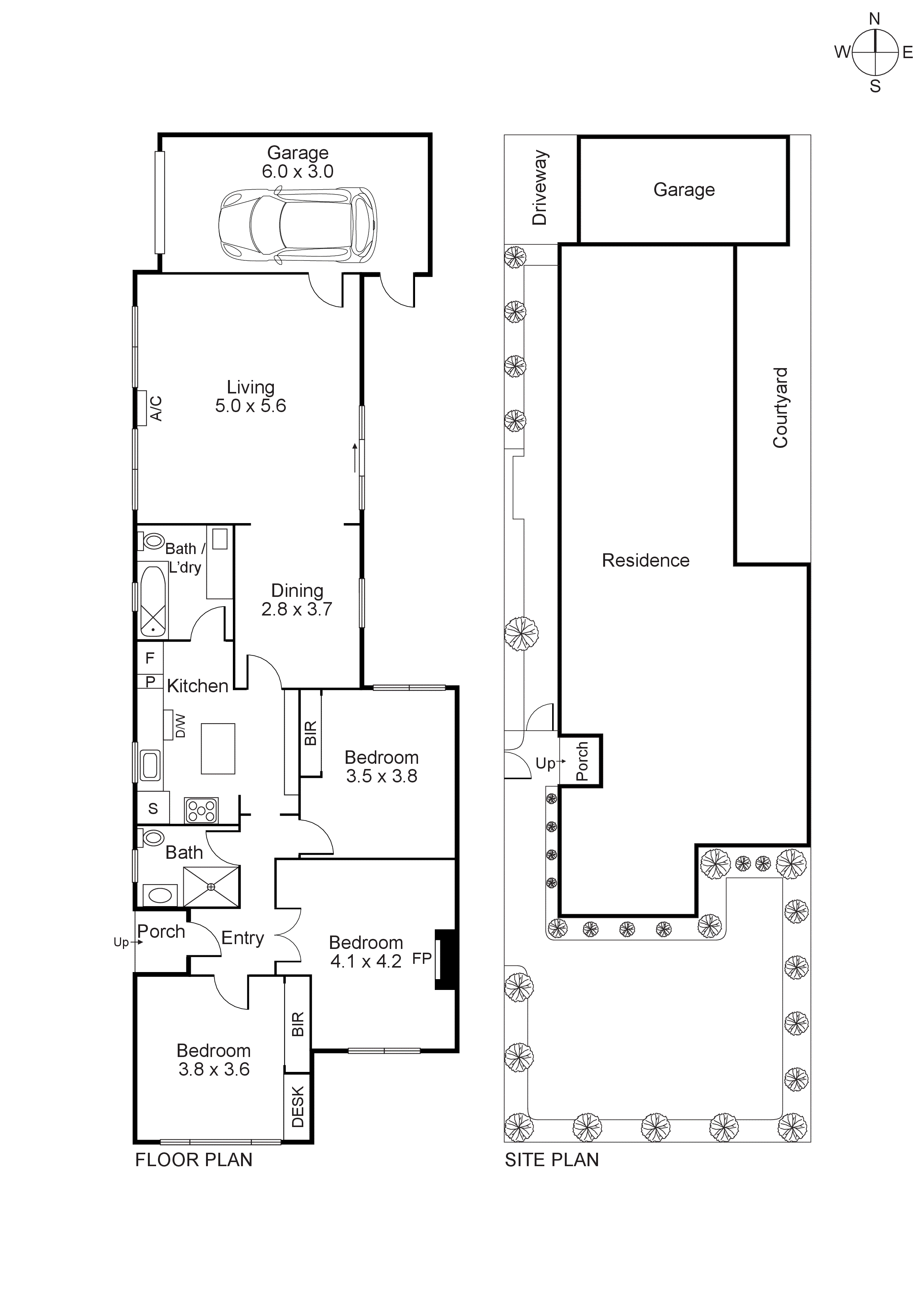
The expansive living room is...
Entered off Arnott Street, the leafy location and stunning Art Deco style of this solid residence form a brilliant combination.
From the moment you walk in, pristine features such as beautifully crafted ceiling work, original hardwood floorboards and subtle natural light complement an immaculate renovation.
The expansive living room is flanked by a side garden lined with vines and olive trees, on the other side, an entertainer’s courtyard garden paved for convenience, including an alfresco dining surrounded by vined draped walls all centering on a unique mirror.
A galley style kitchen with faultless efficacy and design is enhanced by a black 900 mm Smeg oven set within the original hearth. The kitchen also comprises soft close white cabinetry, stone benchtops, a Bosch dishwasher, moveable island bench with a timber top and stainless-steel shelves, and a Velux window with motorized blind.
Offering all the hallmarks of the era, with three large bedrooms including the choice of two main bedrooms, both with new double-glazed windows, and two offering built-in wardrobes. Other features include a chic bathroom with a floating timber vanity and a second bathroom/generous laundry with a shower over bath.
A garage with extensive storage and rear garden entry, perfectly manicured front garden, split system AC, ducted heating and further amenities complete this peaceful home mere moments from North Road shopping strip, Ormond train station, buses, the best of Centre Road, in the McKinnon primary school zone, specialist schools, & family parks.
ALL ENQUIRIES MUST INCLUDE A CONTACT NUMBER. For more information, contact Chris Hassall at Buxton Bentleigh on 0412 898 990 or the Buxton Office on 9563 9933. ‘We have obtained all information in this document from sources we believe to be reliable; however, we cannot guarantee its accuracy. Prospective purchasers are advised to carry out their own investigation.’