Zone in on one of the last great renovation opportunities or zone out this vintage original and start again!
Situated in the tightly-held period home precinct between the Bentleigh and McKinnon shopping strips and Allnut Park, this McKinnon Secondary College Zone property comes with an accommodating weatherboard period home and approx 375sqm...
Zone in on one of the last great renovation opportunities or zone out this vintage original and start again!
Situated in the tightly-held period home precinct between the Bentleigh and McKinnon shopping strips and Allnut Park, this McKinnon Secondary College Zone property comes with an accommodating weatherboard period home and approx 375sqm land with a rear right-of-way...and absolutely NO heritage restrictions!
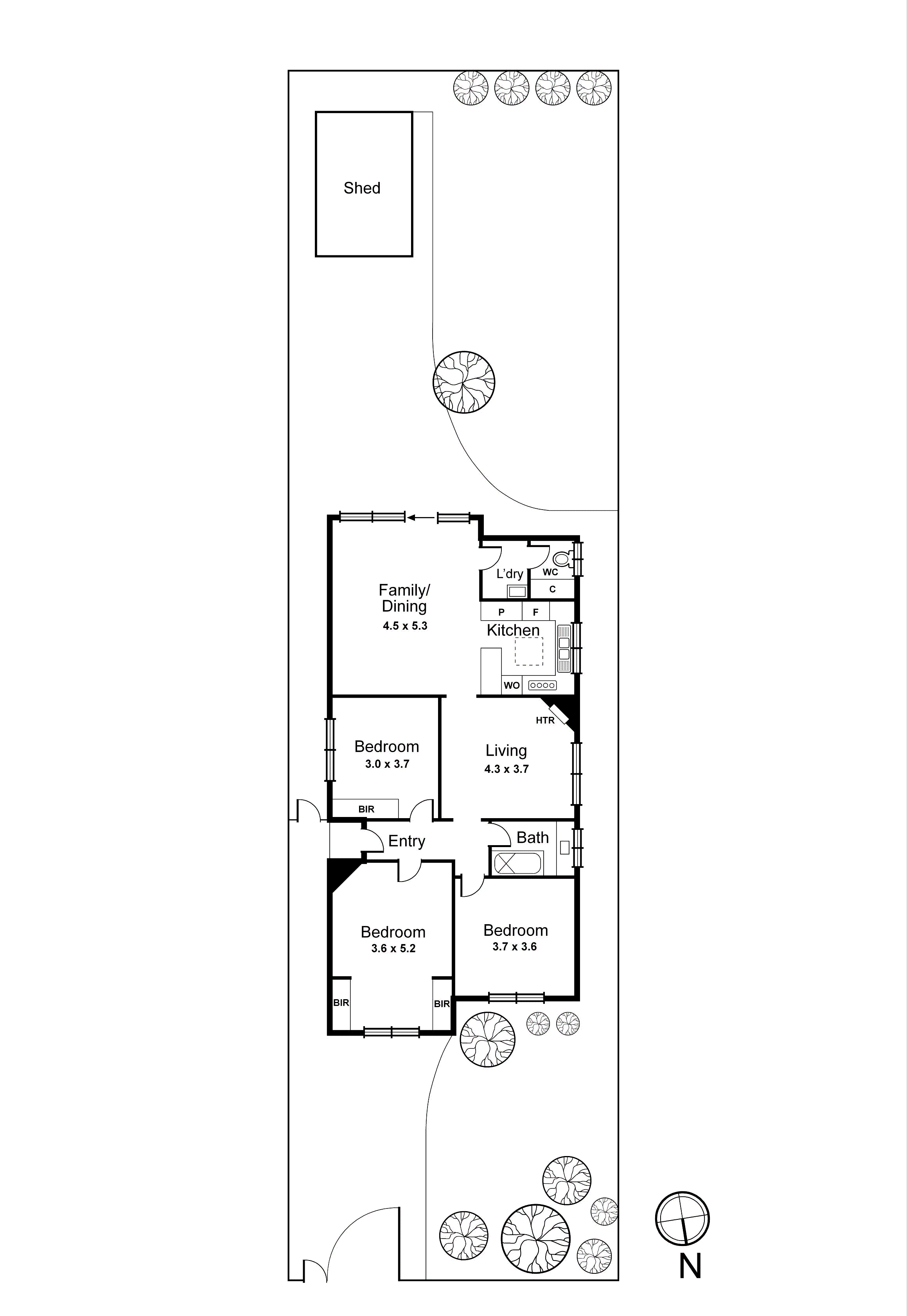
Appreciate the beauty in the existing 3 bedroom home and work with classic L-shaped design featuring a large central living zone, open-plan family-room alongside a stainless-steel appliance kitchen, and a versatile bathroom area with separate WC plus a large separate laundry.
Ready to renovate with all the integrity of the original floorplan, this rare original is set to inspire.
Alternatively, benefit from the flexibility in an existing streetfront crossover to on-site parking, and potential for future garaging on the rear ROW and let neighbouring prestige homes inspire your all-new dream home vision.
Whatever the future holds, this prized period streetscape is ready to reward with close proximity (just one block) to McKinnon’s station and shopping strip, a quick walk (no more than 500m) to Centre Rd’s vibrant shopping precinct, and zoning for popular Ormond Primary School in addition to McKinnon Secondary College.
For more information about this in-Zone opportunity contact Claude Mery at Buxton Bentleigh on 0422 455 848 or the Buxton Office on 9563 9933. ALL ENQUIRIES MUST INCLUDE A CONTACT NUMBER.