Private Auction By Registration - Sat 2nd March at 4:30pm Exemplary design, contemporary sophistication and seamless indoor-outdoor connection define this flawlessly presented four bedroom, two...
Private Auction By Registration - Sat 2nd March at 4:30pm
Exemplary design, contemporary sophistication and seamless indoor-outdoor connection define this flawlessly presented four bedroom, two bathroom residence promising a lifestyle of indulgence at this privileged location two hundred and fifty metres to the foreshore.
Embracing privacy behind high walls and low-maintenance front gardens, every element of the home has been carefully considered to achieve a harmonious blend of style and practicality, delivering spaces that are both beautiful to look at and comfortable to live in.
Layered in luxury, interior dimensions are designed to impress from the exquisite sandstone feature walls to stone finishes, designer lighting, fully tiled bathrooms, high ceilings, and walls of glazing, creating a timeless and elegant aesthetic.
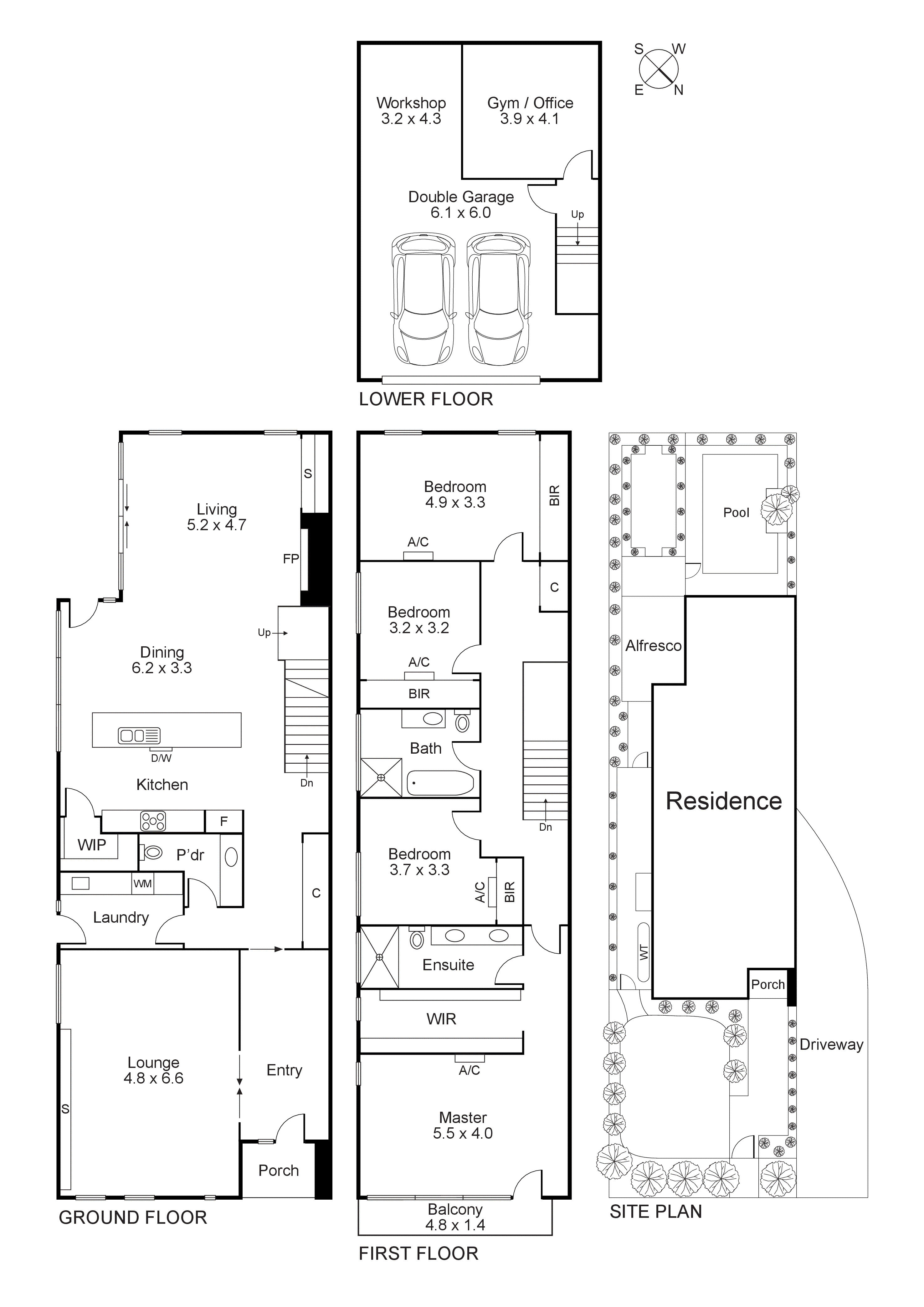
The tiled entrance hall flows past a series of living spaces providing stylish scenes for both refined and relaxed occasions.
A lavishly proportioned lounge room, with a wall of custom fitted bookshelves, can be closed off for privacy; while, at the rear, an expansive fireside living, dining, and kitchen zone is primed for relaxed entertaining overlooking the pool and lush greenery.
Expansive glass sliders from the living and dining areas lead out to a covered al fresco entertainment terrace featuring skylights - a wonderful all-seasons setting to enjoy with family and friends. Beyond, the secluded rear garden with soaring palm tree, established easy-care plantings, and gas heated swimming pool offers year-round enjoyment in sun-drenched surrounds.
Back inside, the gourmet kitchen is filled with subtle but impactful touches of opulence which flawlessly blend function and design. Standout features like the vast stone island provide ample prep space and a social gathering spot to enjoy meals prepared with Smeg appliances including a 5-burner gas cooktop and oven plus Miele dishwasher and walk-in pantry.
At basement level, a multi-purpose room offers a multitude of uses from music practice to theatre room or home gym.
Soaking up the sunshine on the first-floor, four bedrooms include the sublime master suite featuring walk-in robe, luxe twin-vanity ensuite and balcony. Three additional bedrooms, each with robes and one with built-in desk, share a sumptuous central bathroom with freestanding bath and separate shower.
As expected of a home of this calibre, extras include ground floor powder room, sleek laundry with foldaway clothesline, climate control to each room, double glazing, water tank, and internally accessed oversized basement garage for 2+ cars.
In this peaceful, family-focussed pocket just footsteps to the beach and bus services, and a short stroll to Sandringham Village shopping, dining, and train station, Sandringham Primary School, Firbank Grammar ELC and Junior School, and parklands.
For more information about this sophisticated and secluded poolside entertainer contact Mark Earle or Richard Slade at Buxton Sandringham.
