Edwardian charm meets contemporary innovation in this tastefully updated four-bedroom, two-bathroom abode. Meticulously renovated, this Saaj Design enhanced residence retains its original magnificence while introducing modern comforts and contemporary living.
Two living areas open up for social festivities or stay closed for intimate moments....
Edwardian charm meets contemporary innovation in this tastefully updated four-bedroom, two-bathroom abode. Meticulously renovated, this Saaj Design enhanced residence retains its original magnificence while introducing modern comforts and contemporary living.
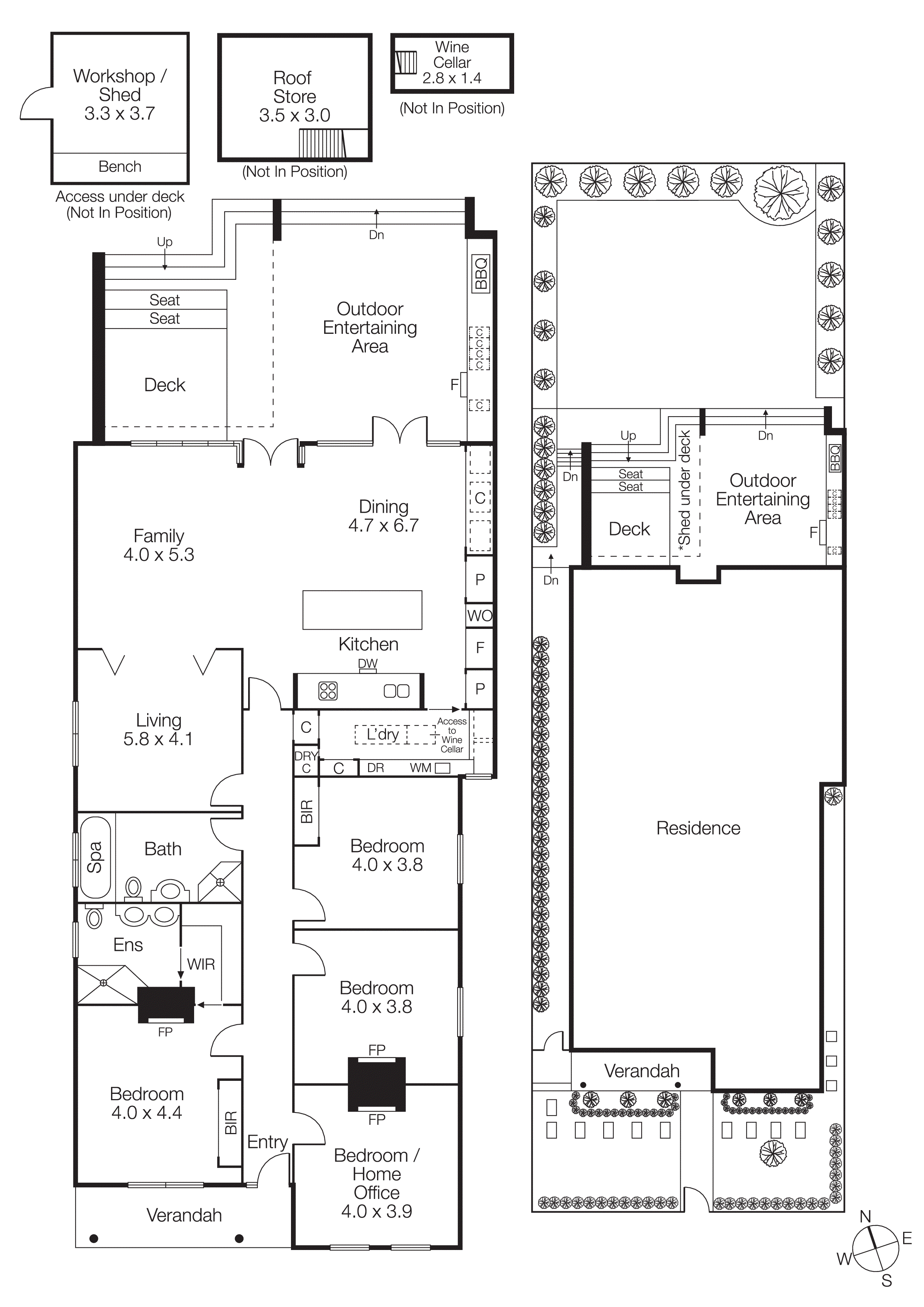
Two living areas open up for social festivities or stay closed for intimate moments. The property boasts a north-facing outdoor 3rd living area for al fresco dining and relaxation across the seasons. The pristine gardens extend to a dream workshop space, meeting the needs of the practical-minded with sophistication.
An elegant kitchen comes equipped with top-tier Miele appliances, an induction cooktop, Fisher and Paykel integrated refrigerator, and elegant slimline porcelain countertops.
The home's clever design features a see-through floor section, offering a glimpse into the wine cellar from the spacious butler's pantry that doubles as a laundry area. The residence indulges its occupants with Travertine-tiled, marble-accented bathrooms, featuring a spacious bath/spa and a dual-vanity ensuite.
Solid hardwood floors and classic plantation shutters add a touch of timeless beauty combined with zoned climate control, electronic blinds, drying cupboard and Cat-5 cabling.
Perfectly positioned at the village's edge, a safe walk to the schools, a stroll to the beach & last minute dash to the train...but far enough to avoid the traffic & hassle!
For more information about this state-of-the-art Edwardian contact Scott Hamilton or Stefan Delyster at Buxton Sandringham.