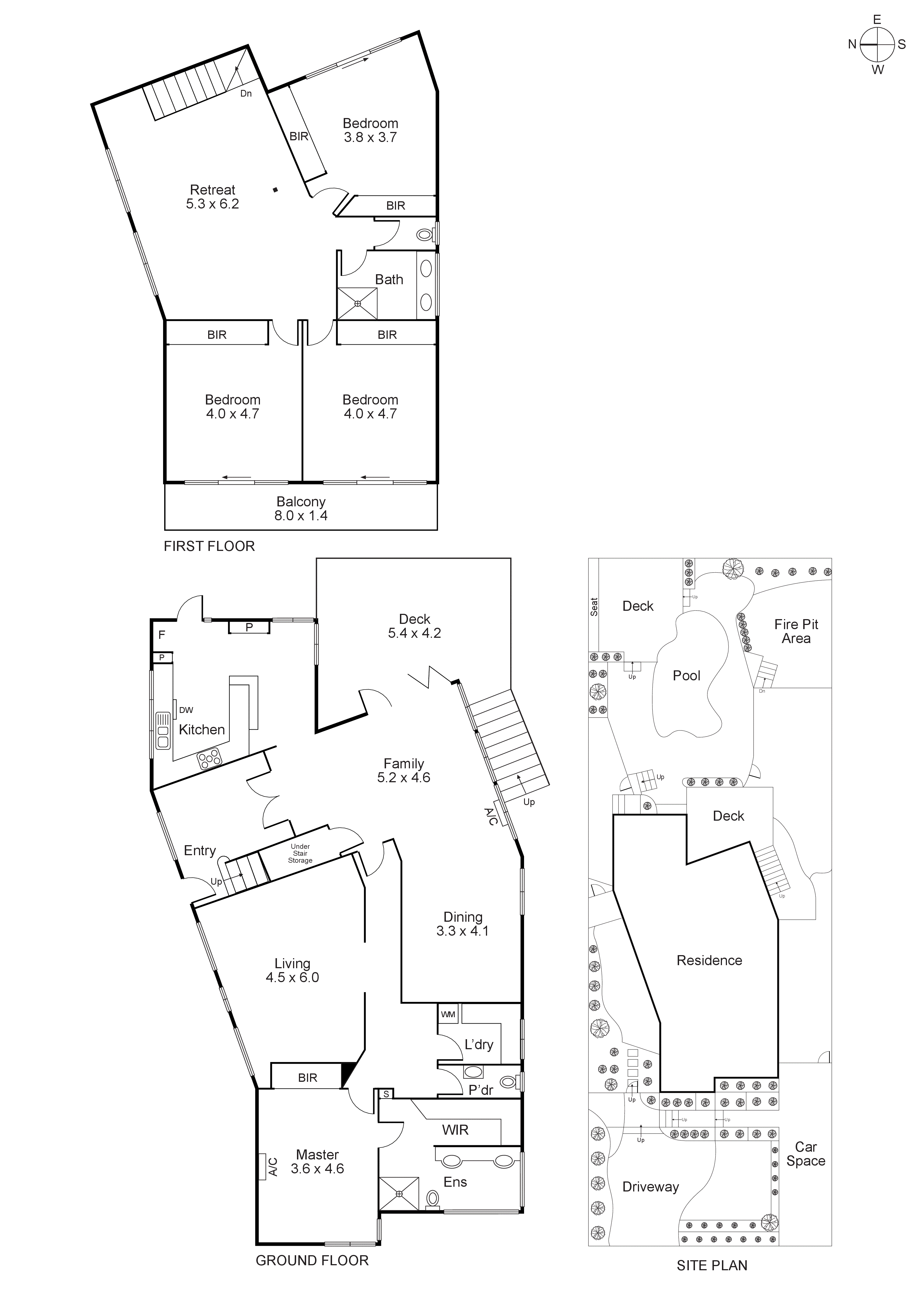
Embracing privacy at a brilliant lifestyle location, this distinctive residence delivers optimum family harmony with four bedrooms, two bathrooms, three wonderful living domains, and numerous outdoor zones.
On entry, warm timber floors flow through the wide hallway to a stylish kitchen enjoying gorgeous outlooks. Entertaining is effortless in...
Embracing privacy at a brilliant lifestyle location, this distinctive residence delivers optimum family harmony with four bedrooms, two bathrooms, three wonderful living domains, and numerous outdoor zones.
On entry, warm timber floors flow through the wide hallway to a stylish kitchen enjoying gorgeous outlooks. Entertaining is effortless in the beautifully presented and well-equipped kitchen featuring breakfast bar, Smeg appliances including 5 burner gas cooktop and oven, Asko dishwasher, and ample cabinetry.
Inspiring comfort and tranquillity, an open plan living and dining room, with split system air conditioner, seamlessly connects to an elevated al fresco dining deck enjoying glorious views of the northeast facing gardens below; while further down the hallway, a generous sun-soaked lounge room enjoys leafy vistas.
Outdoors, embrace resort-style living with a secluded rear entertainment oasis showcasing low maintenance gardens, crazy paving wrapped around a glistening swimming pool, a myriad of al fresco living options including a poolside deck and fire pit area, plus abundant lawn for children and pets.
Family accommodation includes the master bedroom suite with split-system air conditioner, built-in wardrobe, walk-in wardrobe, and luxe twin-vanity ensuite, perfectly private on the ground floor; while upstairs, the children’s zone showcases a substantial retreat, awash in northern light, three sun drenched bedrooms with built in robes, and a sleek twin vanity bathroom. The bedrooms are bright and airy, with two boasting balconies with tree top vistas.
Extras include separate laundry, powder room, separate WC upstairs, zoned heating and cooling, great storage, and dual driveways for ample off-street parking.
In an idyllic pocket, moments to Seaview Village, bus services, Stella Maris Catholic School, Banksia Reserve, the Concourse, Beaumaris Primary School, the beach, plus zoning for Beaumaris Secondary College and Mentone Girls’ Secondary College.
For more information about this (describe property type) contact Romana Altman or Mark Earle at Buxton Sandringham.