Expressions of Interest Closing 14th March @ 1pm (Unless Sold Prior)
Splendid 70s architecture and a tightly held, blue chip locale combine on a magnificent 665m2(approx..) for the perfect opportunity to revel in picture-perfect originality, go up, out or begin again entirely (STCA).
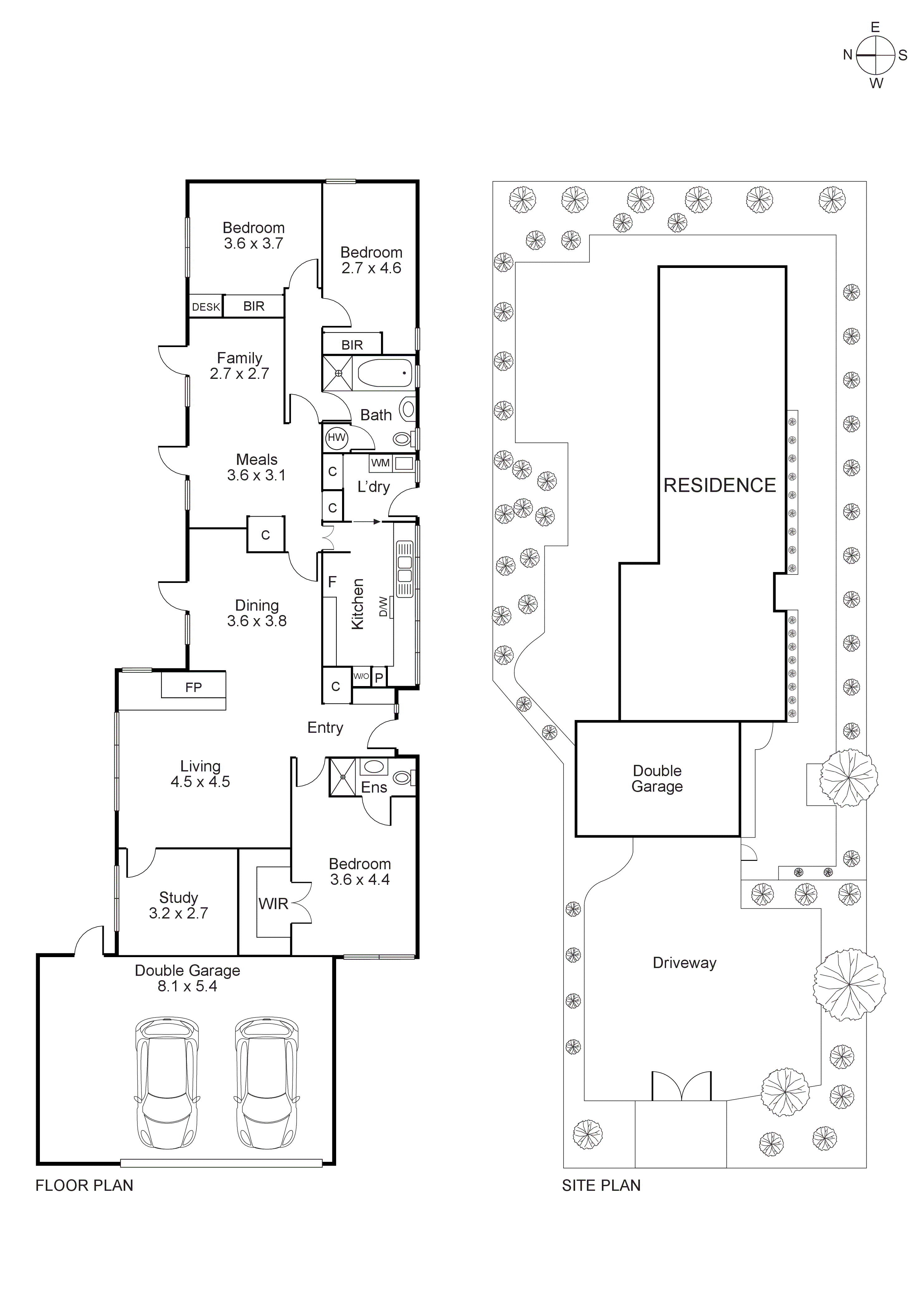
With an undoubtedly flexible floor plan, northern light...
Expressions of Interest Closing 14th March @ 1pm (Unless Sold Prior)
Splendid 70s architecture and a tightly held, blue chip locale combine on a magnificent 665m2(approx..) for the perfect opportunity to revel in picture-perfect originality, go up, out or begin again entirely (STCA).
With an undoubtedly flexible floor plan, northern light illuminates the open plan living and dining rooms divided by an open fireplace and a classic TV room all featuring sliding doors revealing full length established gardens. Into the sky lit retro kitchen where original tiling, benches and further features combine for a unique retro vibe.
The double size master bedroom is complemented by a wardrobe and ensuite for convenience. Well zoned, two bedrooms are enhanced by built-in wardrobes, a bathroom with a bath, large laundry and a fourth bedroom/home office.
Dotted with original detail throughout such as timber ceilings, exposed brickwork, a big garage & secluded gardens, a secure entrance, and picturesque views from every window all border the Golden Mile.
Live metres to Brighton beach, a plethora of renown private schools, a walk to Church & Bay Street’s in all their glory & all the family amenities that makes bayside Brighton a one-of-a-kind experience.
ALL ENQUIRIES MUST INCLUDE A CONTACT NUMBER. For more information, contact Chris Hassall at Buxton Bentleigh on 0412 898 990 or the Buxton Office on 9563 9933. ‘We have obtained all information in this document from sources we believe to be reliable; however, we cannot guarantee its accuracy. Prospective purchasers are advised to carry out their own investigation.’